Property SEARCH

3 bed Terraced

£280,000

Cranbrook Close, Twydall, Gillingham, ME8

AVAILABLE


Property FEATURES

  • Chain Free
  • Three Separate Bedrooms
  • Popular Twydall Location
  • Spacious Kitchen / Diner
  • South West Facing Garden measuring approx. 50 x 23ft
  • Generous Lounge With French Doors Into The Garden
  • Scope For Further Development (STPP)
  • Close To Shops, Public Transport, Schools & Local Amenities

Property DESCRIPTION

Guide Price £280,000 - £300,000. Chain Free and nestled in a quiet cul-de-sac within sought-after Twydall, this three-bedroom mid-terrace family home in Cranbrook Close offers space, comfort, and fantastic potential.

Step inside to find a generous lounge with French doors opening onto a sunny, south-westerly facing garden, perfect for family living and entertaining. The spacious kitchen/diner provides an ideal hub for mealtimes and gatherings, while the upstairs family bathroom serves two double bedrooms and a single bedroom, currently used as a home office. The main bedroom is a larger-than-average double boasting dual-aspect windows, creating a bright and airy retreat. Outside, the expansive garden offers scope for further development (STPP), giving you the opportunity to extend or enhance as you wish. The property also benefits from a modern combi boiler fitted in 2023, ensuring efficient heating and peace of mind. Situated close to local shops, amenities, and a great selection of schools, this home combines convenience with community living. With abundant on-street parking and no restrictions, it's perfect for growing families or commuters alike.

Homes in this area are always in high demand, so don't miss out! Call the Greyfox Sales Team in Rainham today to arrange your viewing today.

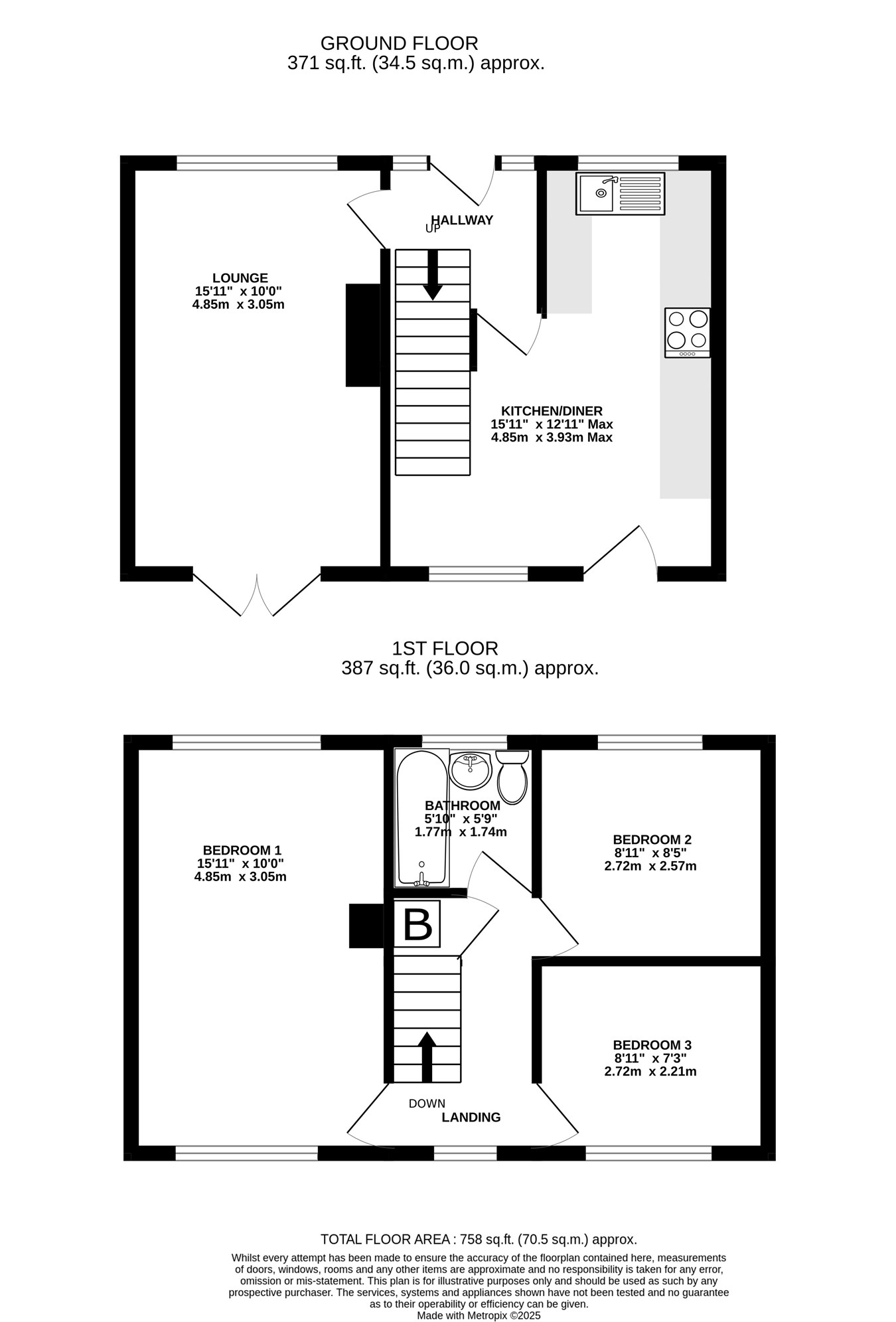
Ground Floor


Lounge
15' 11" x 10' 0" (4.85m x 3.05m)

Kitchen/ Diner
15' 11" x 12' 11" (4.85m x 3.94m)

First Floor


Bedroom 1
15' 11" x 10' 0" (4.85m x 3.05m)

Bathroom
5' 10" x 5' 9" (1.78m x 1.75m)

Bedroom 2
8' 11" x 8' 5" (2.72m x 2.57m)

Bedroom 3
8' 11" x 7' 3" (2.72m x 2.21m)

Property LOCATION

Show Map
Powered by Apex27