Property SEARCH

4 bed Terraced

£625,000

Woodlawn Street, Whitstable

FOR SALE


Property FEATURES

  • Dramatically Remodelled Victorian House
  • Beautifully Presented Throughout
  • Prime Central Location
  • Conservation Area
  • Close to High Street, Shops & Restaurants
  • Whitstable Station 0.4 miles
  • 4 Double Bedrooms
  • Open-Plan Reception Space
  • South Facing Garden
  • No Onward Chain

Property DESCRIPTION

A dramatically remodelled Victorian house ideally situated on Whitstable's sought after Woodlawn Street, within the highly desirable conservation area, a short stroll to the beach, and moments from the High Street with it's array of independent shops, highly regarded restaurants and cafe bars. Whitstable station is 0.4 miles distant.

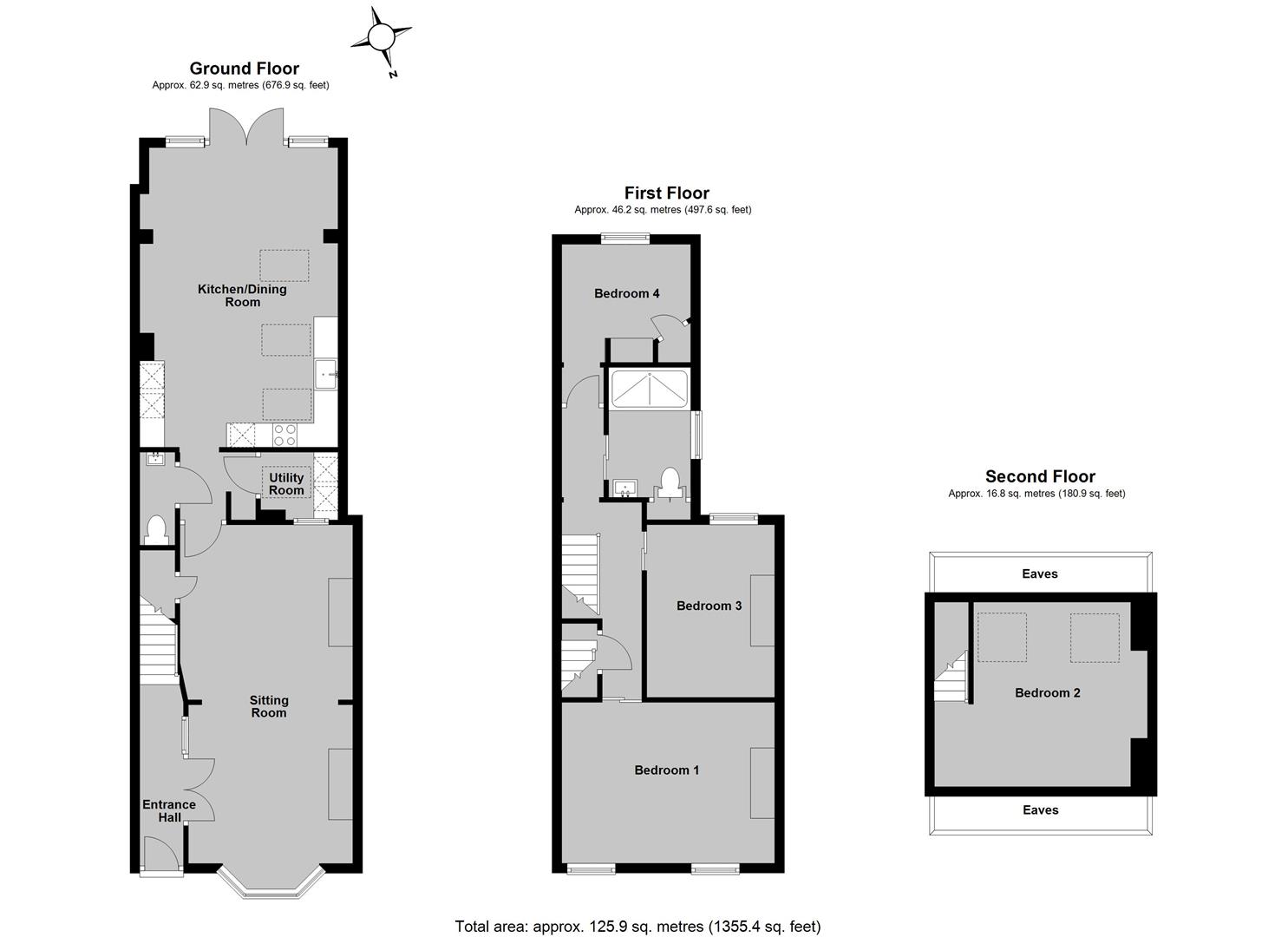
The thoughtfully extended accommodation is presented in enviable style throughout, extending to 1355 sq ft (126 sq m), and is arranged on the ground floor to provide an entrance hall, a large sitting room, an open plan kitchen/dining room with doors opening to the garden, a utility room and a cloakroom. The first floor comprises three double bedrooms and a luxuruious shower room, with a further double bedroom located on the second floor.

To the rear of the house there is a beautifully landscaped South facing garden, which provides the ideal environment for alfresco entertaining. No onward chain.

Property LOCATION

Show Map
Powered by Apex27