Property SEARCH

3 bed Link Detached House

£380,000

Millbrook Close, Maidstone, Kent

AVAILABLE


Property FEATURES

  • Cul-de-sac location
  • Spacious downstairs with large conservatory
  • Garage and driveway
  • Great location for good schooling, with primary and secondary schools accessible via walking and good bus route
  • The house is within walking distance to Maidstone West, it has local amenities also within walking distance with Tescos close by
  • Above-average EPC energy efficiency rating C (69)
View Brochure

Property DESCRIPTION

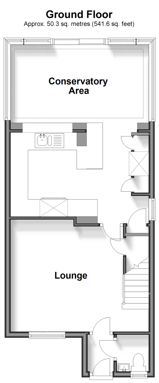
This well-located Link detached property is a great property for accessible transport and commuting, it is a walk from the station at Maidstone West, which is a London bound station, it is also very accessible to walk into town for bus routes and the use of Maidstone East station also, with a direct interlink to London Bridge. A truly great position for a family with schooling being accessible by foot, and frequent bus routes and the kids can walk into town on the weekends with ease. Internally, the downstairs is a great size, with a large conservatory extension, currently set as a dining room giving it additional living space. It is a perfect family home or downsize, with a secluded rear garden which suits the conservatory style extension. The upstairs space is generously sized, and the traditional smaller third room is still a great size, with a practical cupboard space. Room sizes:PorchCloakroom: 5'10 x 3'7 (1.78m x 1.09m)Lounge: 16'5 x 13'1 (5.01m x 3.99m)Kitchen: 16'5 x 8'0 (5.01m x 2.44m)Conservatory Area: 16'5 x 7'8 (5.01m x 2.34m)LandingBedroom 1: 10'1 x 9'5 (3.08m x 2.87m)Bedroom 2: 11'0 x 9'1 (3.36m x 2.77m)Bedroom 3: 11'1 x 7'4 (3.38m x 2.24m)Bathroom: 7'0 x 6'3 (2.14m x 1.91m)Rear GardenFront GardenDrivewayGarage: 15'6 x 8'10 (4.73m x 2.69m) 
The information provided about this property does not constitute or form part of an offer or contract, nor may it be regarded as representations. All interested parties must verify accuracy and your solicitor must verify tenure/lease information, fixtures & fittings and, where the property has been extended/converted, planning/building regulation consents. All dimensions are approximate and quoted for guidance only as are floor plans which are not to scale and their accuracy cannot be confirmed. Reference to appliances and/or services does not imply that they are necessarily in working order or fit for the purpose.
 
We are pleased to offer our customers a range of additional services to help them with moving home. None of these services are obligatory and you are free to use service providers of your choice. Current regulations require all estate agents to inform their customers of the fees they earn for recommending third party services. If you choose to use a service provider recommended by Wards, details of all referral fees can be found at the link below. If you decide to use any of our services, please be assured that this will not increase the fees you pay to our service providers, which remain as quoted directly to you.

Council Tax band: D

Tenure: Freehold

Property LOCATION

Show Map
Powered by Apex27