Property SEARCH

4 bed Terraced

£425,000

St. Philips Avenue, Maidstone

FOR SALE


Property FEATURES

  • Guide Price: £425,000 - £450,000
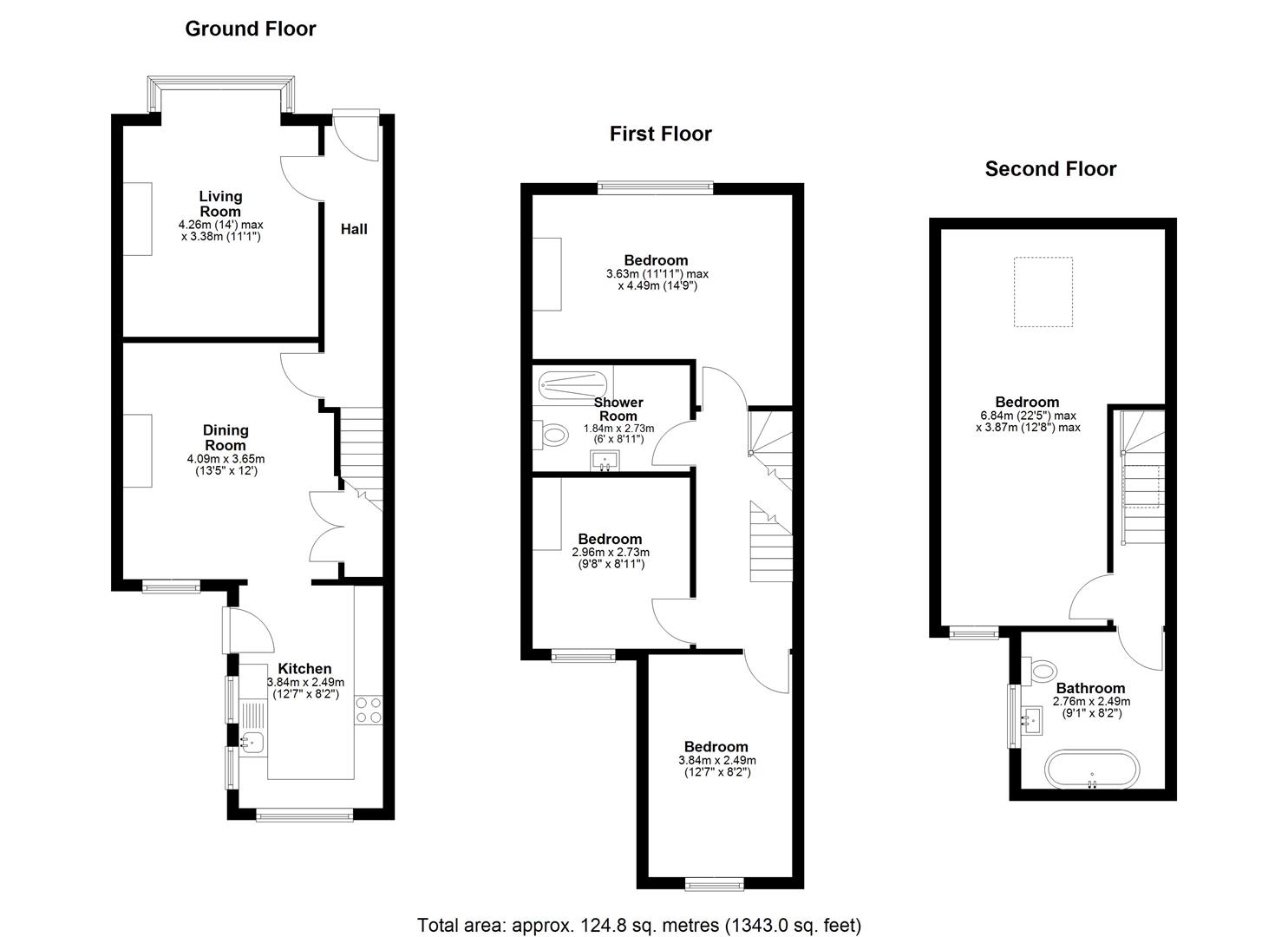
  • Extended 4 bed family house
  • Close to town centre and Mote Park
  • 1343 sq ft of accommodation over 3 floors
  • Newly fitted kitchen
  • 2 bathrooms
  • Landscaped rear garden
  • Detached double garage
  • Solar panels with battery storage

Property DESCRIPTION

** GUIDE PRICE: £425,000 - £450,000 **

The property is situated in a very popular residential area close to Maidstone town centre and Mote Park. The county town provides a good range of shopping, educational and social facilities, together with two mainline stations. Mote Park has 450-acres of mature parkland and a 30-acre lake, providing a wide range of recreational activities.

The property comprises a deceptively spacious four-bedroom family house enjoying mellowed brick elevations under a tiled roof. The property having been extended by our clients to provide excellent family accommodation. The house benefits from solar panels with battery storage, gas fired central heating, double glazing, and is in very good order throughout. The rear garden has been landscaped and is very attractive with a covered seating area. At the bottom of the garden is a detached double garage. Viewing of this lovely family home is thoroughly recommended by the sole selling agents. NO FORWARD CHAIN. Tenure: Freehold. EPC Rating: C. Council Tax Band: C.

Property LOCATION

Show Map
Powered by Apex27