Property SEARCH

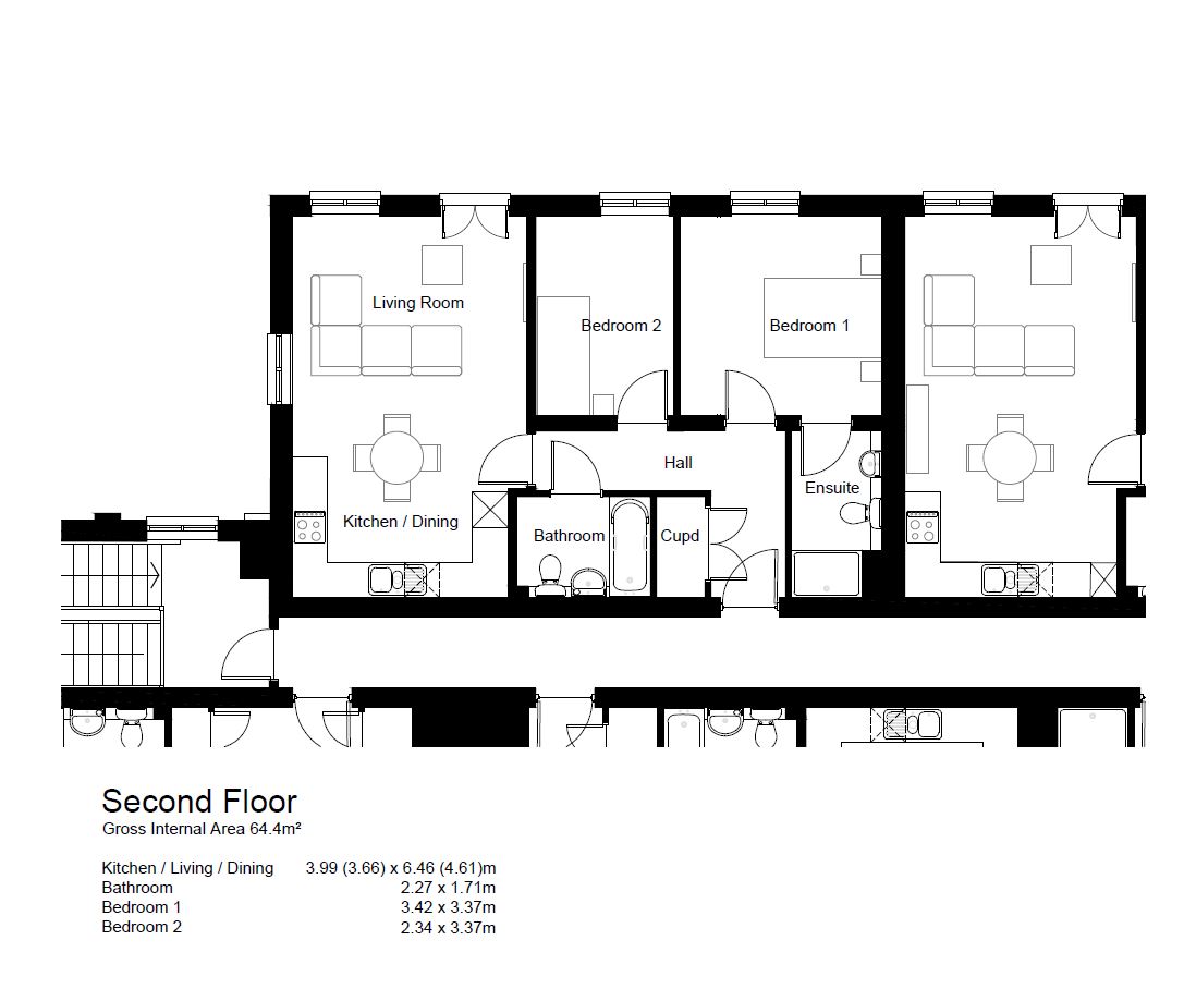
2 bed Apartment

£237,500

Arras Way, Folkestone, CT19

AVAILABLE


Property FEATURES

  • Move in time for Christmas
  • Choose your Kitchen
  • Your choice of Flooring
  • Upgrades Available
  • Walking distance to Rail station
  • Less than an Hour to London by Train
  • EPC - B
  • Service charge per annum £963.89
View Brochure

Property DESCRIPTION

SUMMARY
These stylish, energy-efficient new homes offer the perfect blend of quality, comfort, and individuality - ideal for first-time buyers, downsizers, and investors alike. Personalise your new home in time for Christmas!


DESCRIPTION
New Build Apartments for Sale in Folkestone - Premium Development with Customisable Finishes

Discover an exceptional collection of new build apartments in Folkestone, created by a high-end local developer known for craftsmanship, design quality, and attention to detail.

This boutique development offers a rare opportunity to personalise your new home, allowing buyers to choose their preferred kitchen style and flooring finishes - something rarely available at this stage of the build.

Each apartment combines contemporary design, energy efficiency, and practical modern living, all set within beautifully landscaped surroundings close to Folkestone's shops, seafront, and fast-link train connections to London.

Council Tax Band: B Tenure: Leasehold Current Annual Ground Rent (£): 0.00 Ground Rent Review Period (Years): Not currently available, please contact the branch Ground Rent Increase (%): Not currently available, please contact the branch Current Annual Service Charge (£): 963.89 Date of Next Service Charge Review: Not currently available, please contact the branch Number of Years Left on Lease: Not currently available, please contact the branch

Key Features
*Choice of Benchmark Soho kitchens with handleless soft-close doors and drawers
*40mm laminated worktops with 70mm upstand (optional premium upgrades available)
*Integrated appliances including four-zone electric hob, stainless steel oven, extractor hood, fridge/freezer and washer dryer
*LED downlights to kitchen, bathrooms, and en suites, plus brushed chrome accessories
*Video door entry system and fibre broadband ready for connection
*Luxury bathrooms and en suites with Ideal Standard fittings, chrome mixer taps, heated towel rails, and wall tiling to full height around basins and baths
*Energy-efficient heating via air-source heat pump
*Carpets to lounge, hallway, and bedrooms, vinyl flooring to kitchen, bathroom, and en suite
*Allocated parking and cycle storage with hard and soft landscaping
*Traditional street-style front doors and anthracite grey external windows for a premium finish
*10-year Premier structural warranty for complete peace of mind


Optional Upgrades
*Flooring upgrades - including wood, luxury vinyl, or tiled options
*Aluminium kitchen splashback and upgraded worktops
*Enhanced wall tiling and full-height mirrors in bathrooms and en suites

Location
Ideally positioned in Folkestone, these homes are close to local shops, cafes, and schools, with easy access to Folkestone Central station, offering High-Speed rail to London St Pancras in under an hour. The seafront, Harbour Arm, and beautiful coastal walks are all within easy reach.
These stylish, energy-efficient new homes offer the perfect blend of quality, comfort, and individuality. Low service charges, low council tax banding's, these are ideal for first-time buyers, downsizers, and investors alike.
Council Tax Band B.
Don't miss this chance to customise your dream apartment in Folkestone.
Contact us today to arrange a viewing or discuss your design choices.


Disclaimer
All the information has been provided by the developer and is subject to verification. Please note all interior photographs are taken from the Show Home and are indicative only.



This is a Leasehold property with details as follows; Term of Lease 999 years from 27 Oct 2025. Should you require further information please contact the branch. Please Note additional fees could be incurred for items such as Leasehold packs.



1. MONEY LAUNDERING REGULATIONS - Intending purchasers will be asked to produce identification documentation at a later stage and we would ask for your co-operation in order that there will be no delay in agreeing the sale.
2. These particulars do not constitute part or all of an offer or contract.
3. The measurements indicated are supplied for guidance only and as such must be considered incorrect.
4. Potential buyers are advised to recheck the measurements before committing to any expense.
5. Connells has not tested any apparatus, equipment, fixtures, fittings or services and it is the buyers interests to check the working condition of any appliances.
6. Connells has not sought to verify the legal title of the property and the buyers must obtain verification from their solicitor.

Powered by Apex27