Property SEARCH

3 bed Semi-detached House

£400,000

Maude Close, The Maude, New Romney, Kent

AVAILABLE


Property FEATURES

  • Fitted kitchen with Bosch integrated appliances
  • Elegant white Roca and Vado sanitaryware and chrome fittings to bathroom and en-suite
  • Spacious and inviting bedrooms
  • Generous enclosed rear garden, laid to lawn with patio area
  • Allocated parking with wiring for an EV charging point
  • Hive smart heating controls for energy efficiency
  • Above-average EPC energy efficiency rating B (85)
View Brochure

Property DESCRIPTION

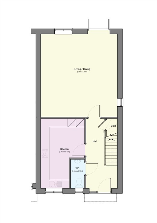
A modern home with a bright entrance hall that impresses as soon as you walk through the door. The stunning kitchen offers quality cabinetry, Bosch integrated appliances and eye-catching worktops. Down the hall, the open plan living/dining room is ideal for entertaining and boasts French doors to the generous and enclosed rear garden which is laid to lawn with a patio for outdoor seating. The ground floor accommodation includes a cloakroom for convenience. Upstairs, the main bedroom is complete with a stunning en-suite shower room while the other bedrooms share the family bathroom with the rest of the home. The bathroom benefits from elegant white Roca & Vado sanitaryware with chrome fittings and built in storage below the wash basin. Offered with allocated parking and wiring for an EV charging point. A viewing of this new build home is highly recommended, book yours now! Room sizes:Entrance HallCloakroomKitchen: 16'3 (4.96m) x 10'2 (3.10m) narrowing to 6'6 (1.98m)Lounge/Dining Room: 19'2 x 18'0 (5.85m x 5.49m)LandingBedroom 1: 11'10 x 11'8 (3.61m x 3.56m)En-SuiteBedroom 2: 12'4 x 10'5 (3.76m x 3.18m)Bedroom 3: 12'5 x 7'0 (3.79m x 2.14m)BathroomRear GardenAllocated Parking 
The information provided about this property does not constitute or form part of an offer or contract, nor may it be regarded as representations. All interested parties must verify accuracy and your solicitor must verify tenure/lease information, fixtures & fittings and, where the property has been extended/converted, planning/building regulation consents. All dimensions are approximate and quoted for guidance only as are floor plans which are not to scale and their accuracy cannot be confirmed. Reference to appliances and/or services does not imply that they are necessarily in working order or fit for the purpose.
 
We are pleased to offer our customers a range of additional services to help them with moving home. None of these services are obligatory and you are free to use service providers of your choice. Current regulations require all estate agents to inform their customers of the fees they earn for recommending third party services. If you choose to use a service provider recommended by Wards, details of all referral fees can be found at the link below. If you decide to use any of our services, please be assured that this will not increase the fees you pay to our service providers, which remain as quoted directly to you.

Tenure: Freehold

Powered by Apex27