Property SEARCH

5 bed Detached House

£575,000

Beech Grove, Cliffsend, Ramsgate, Kent

AVAILABLE


Property FEATURES

  • Double garage and off road parking
  • Being sold with no onward chain
  • Close to the new Thanet Parkway train station with high speed links to London
  • Situated in the highly desirable village of Cliffsend with beautiful countryside walks
  • Generous garden
View Brochure

Property DESCRIPTION

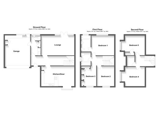
This executive detached house is located in Cliffsend village on the outskirts of Ramsgate. The property is within easy reach to the newly built Parkway train station and the coastal walks of the Viking Trail leading leading from Ramsgate to Sandwich passing Pegwell Bay nature reserve. The property comprises of spacious rooms throughout and a beautiful sunny aspect rear garden. Additionally the property also benefits from an integrated garage and off road parking for multiple vehicles. Currently being sold with tenant in situ. Room sizes:Entrance HallwayLounge: 19'9 x 11'9 (6.02m x 3.58m)Utility RoomCloakroomKitchen/Diner: 19'5 x 14'6 (5.92m x 4.42m)LandingBedroom 1: 13'9 x 11'10 (4.19m x 3.61m)En-Suite BathroomBedroom 2: 11'9 x 10'4 (3.58m x 3.15m)Bedroom 3: 11'10 x 6'8 (3.61m x 2.03m)BathroomLandingBedroom 4: 13'9 x 12'0 (4.19m x 3.66m)Store Room: 5'9 x 4'8 (1.75m x 1.42m)Bedroom 5: 13'9 x 12'0 (4.19m x 3.66m)Garden to Front & RearDouble GarageOff Road Parking 
The information provided about this property does not constitute or form part of an offer or contract, nor may it be regarded as representations. All interested parties must verify accuracy and your solicitor must verify tenure/lease information, fixtures & fittings and, where the property has been extended/converted, planning/building regulation consents. All dimensions are approximate and quoted for guidance only as are floor plans which are not to scale and their accuracy cannot be confirmed. Reference to appliances and/or services does not imply that they are necessarily in working order or fit for the purpose.
 
We are pleased to offer our customers a range of additional services to help them with moving home. None of these services are obligatory and you are free to use service providers of your choice. Current regulations require all estate agents to inform their customers of the fees they earn for recommending third party services. If you choose to use a service provider recommended by Wards, details of all referral fees can be found at the link below. If you decide to use any of our services, please be assured that this will not increase the fees you pay to our service providers, which remain as quoted directly to you.

Council Tax band: F

Tenure: Freehold

Property LOCATION

Show Map
Powered by Apex27