Property SEARCH

7 bed Terraced

£1,250,000

Nelson Crescent, Ramsgate, Kent

AVAILABLE


Property FEATURES

  • Freehold property converted into 3 luxury apartments
  • Elevated sea and harbour views to the front
  • Double garage providing off street parking
  • Within walking distance of the beach, bars, restaurants and entertainment
  • Fabulous and unique indoor swimming pool
  • Individual Council Tax and EPC ratings apply
  • Cash buyers or Buy To Let mortgage only
View Brochure

Property DESCRIPTION

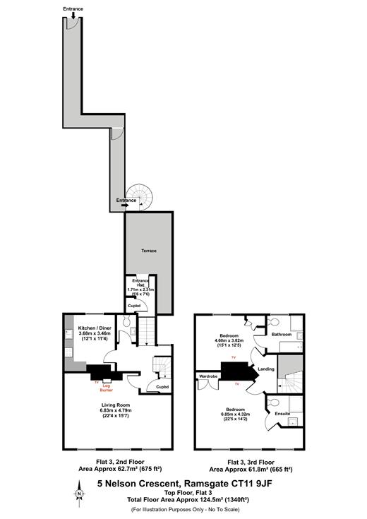
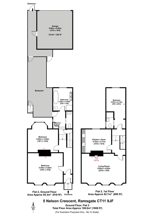
This elegant Grade II Listed Georgian townhouse, with uninterrupted sea views over the marina, has all the features from a bygone era with its first floor canopied balcony and sash windows. While internally there are high coved ceilings, picture and dado rails, bay windows, ceiling roses, high skirtings and panelled doors. It offers uninterrupted views over the marina and has been luxuriously converted into three impressive apartments and includes a small swimming pool and a double garage with access from Allington Place. While currently rented out as upmarket holiday lets, there is a great opportunity for a new owner to make one of the apartments their home, while generating an income from the other two. The magnificent ground and first floor maisonette includes two double bedrooms on the ground floor and stairs to the half landing with its en suite double bedroom, cloakroom, family bathroom and access to the main rear courtyard. The first floor includes a kitchen/diner and the spectacular sitting room with three sets of French doors to the balcony. A gate from Allington Place provides access to the top floor apartment, which is approached through wrought iron gates leading to a spiral staircase, a terrace and the front entrance. There is a lounge/diner with panoramic views, a cloakroom and a kitchen/breakfast room as well as stairs up to two double en suite bedrooms with vaulted ceilings and crossbeams. The lower ground floor apartment has a separate entrance from the pavement that opens into a lobby with access to the swimming pool, a cloakroom, a lounge/diner with its central lighting rose and an archway to the kitchen. There is a double en suite bedroom with French doors to a small courtyard with steps up to the main courtyard and rear access to Allington Place. A second en suite double bedroom has French doors to a separate courtyard. What the Owner says:
We renovated this impressive property about seven years ago and have been delighted with the luxurious results. All the apartments have solid oak flooring, cast iron radiators, USB plugs and Sky TVs in the living rooms and bedrooms and beautiful granite with chiselled marble inset fireplaces and log burners in all the sitting rooms. All the bedrooms have built in cupboards while the bathrooms and cloakrooms have mosaic tiled ceiling and marble floors with underfloor heating. The kitchen/breakfast rooms have marble floors and underfloor heating as well as Shaker style units with granite worktops housing various appliances and the individual courtyard areas have granite flooring, chiselled marble walls and wrought iron railings.
It has been an excellent business but we are now involved with other activities and feel it is time for new owners to take over. The location is ideal as it is only a short distance to the dual carriageway for access to London, Canterbury and the coastal towns but it is close to the seafront, restaurants and shops. There are plenty of local sporting facilities available including a number of golf courses as well as excellent primary, grammar and private schools. Room sizes:SPLIT LEVEL GROUND FLOORPorchHallBedroom 1: 17'9 x 15'8 (5.41m x 4.78m)Bedroom 2: 16'1 (4.91m) x 14'4 into bay (4.37m) narrowing to 12'5 (3.79m)LobbyCloakroomBath/Shower Room: 12'4 x 9'9 (3.76m x 2.97m)SPLIT LEVEL FIRST FLOORLandingBedroom 3: 15'3 (4.65m) x 11'3 (3.43m) narrowing to 9'9 (2.97m)Walk In WardrobeEn Suite Shower RoomKitchen/Diner: 15'4 x 12'4 (4.68m x 3.76m)Sitting Room: 23'0 x 15'8 (7.02m x 4.78m)BalconyOUTSIDERear GardenLOWER GROUND FLOORLobbyPool Room: 17'8 x 5'9 (5.39m x 1.75m)CloakroomLounge/Diner: 22'5 x 15'4 (6.84m x 4.68m)Kitchen: 13'2 x 6'2 (4.02m x 1.88m)Bedroom 2: 11'9 x 10'11 (3.58m x 3.33m)En Suite Shower RoomHallBedroom 1: 16'7 (5.06m) narrowing to 14'9 (4.50m) x 9'8 (2.95m)En Suite Shower RoomOUTSIDECourtyardSPLIT LEVEL SECOND FLOOREntrance HallCloakroomKitchen/Breakfast Room: 12'11 x 12'5 (3.94m x 3.79m)Lounge/Diner: 22'6 (6.86m) x 15'6 (4.73m) narrowing to 11'1 (3.38m)THIRD FLOORLandingBedroom 1: 22'5 (6.84m) narrowing to 14'7 (4.45m) x 14'2 (4.32m)En Suite Shower RoomBedroom 2: 15'2 (4.63m) x 12'6 (3.81m) narrowing to 11'4 (3.46m)En Suite Bath/Shower RoomOUTSIDERoof TerraceOUTBUILDING 1Double Garage: 19'11 x 18'6 (6.07m x 5.64m) 
The information provided about this property does not constitute or form part of an offer or contract, nor may it be regarded as representations. All interested parties must verify accuracy and your solicitor must verify tenure/lease information, fixtures & fittings and, where the property has been extended/converted, planning/building regulation consents. All dimensions are approximate and quoted for guidance only as are floor plans which are not to scale and their accuracy cannot be confirmed. Reference to appliances and/or services does not imply that they are necessarily in working order or fit for the purpose.
 
We are pleased to offer our customers a range of additional services to help them with moving home. None of these services are obligatory and you are free to use service providers of your choice. Current regulations require all estate agents to inform their customers of the fees they earn for recommending third party services. If you choose to use a service provider recommended by Fine & Country, details of all referral fees can be found at the link below. If you decide to use any of our services, please be assured that this will not increase the fees you pay to our service providers, which remain as quoted directly to you.

Council Tax band: B

Tenure: Freehold

Property LOCATION

Show Map
Powered by Apex27