Property SEARCH

5 bed Detached House

£1,225,000

Poot Lane, Upchurch, Kent

AVAILABLE


Property FEATURES

  • An impressive farmhouse that is a true one off and a forever home
  • Generous 20ft lounge and 20ft open plan kitchen/diner
  • Beautiful converted barns perfect for holiday lets or guests to stay
  • Stunning quiet rural location
  • Private and stunning rural areas
View Brochure

Property DESCRIPTION

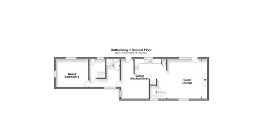
This detached farmhouse offers itself as a rare purchase opportunity and has been own by the same family for over 100 years. Boasting generous sized rooms and a layout that could suit your needs. There is also two beautiful barn conversions that could be used for guests or even to generate a healthy and regular income as holiday lets. The private and stunning location is located off a quiet country lane and proudly sits on a plot. This is a forever home for any keen buyer looking for something complete unique, call to find out more and book to view. Room sizes:Entrance HallUtility/Downstairs CloakroomStudy: 6'9 x 5'9 (2.06m x 1.75m)Lounge: 20'3 x 11'9 (6.18m x 3.58m)Sitting Room: 19'4 x 12'9 (5.90m x 3.89m)Kitchen/Diner: 20'4 x 14'7 (6.20m x 4.45m)Guest Lounge/Diner: 23'7 x 17'8 (7.19m x 5.39m)Guest Kitchen/Breakfast Room: 17'1 x 11'3 (5.21m x 3.43m)BathroomLandingBedroom 1: 11'9 x 10'9 (3.58m x 3.28m)Bedroom 2: 14'7 x 9'9 (4.45m x 2.97m)Bedroom 3: 11'0 x 9'1 (3.36m x 2.77m)Bedroom 4: 7'7 x 7'0 (2.31m x 2.14m)Bedroom 5: 12'9 x 7'9 (3.89m x 2.36m)Shower RoomBathroomGuest Bedroom 1: 17'9 x 7'7 (5.41m x 2.31m)En-Suite Shower RoomGuest Dressing Room: 17'7 x 16'1 (5.36m x 4.91m)Guest Bedroom 2: 10'2 x 7'7 (3.10m x 2.31m)Guest Bedroom 3: 10'1 x 7'7 (3.08m x 2.31m)Entrance HallGuest Kitchen/Diner: 17'2 x 14'9 (5.24m x 4.50m)Guest Lounge: 15'3 x 15'2 (4.65m x 4.63m)Guest Bedroom 3: 12'3 x 10'7 (3.74m x 3.23m)Shower RoomLandingGuest Bedroom 1: 16'4 x 9'7 (4.98m x 2.92m)Guest Bedroom 2: 16'2 x 9'4 (4.93m x 2.85m)Bathroom: 9'5 x 8'3 (2.87m x 2.52m)GarageFront GardenRear GardenSide GardenDrivewayCourtyard 
The information provided about this property does not constitute or form part of an offer or contract, nor may it be regarded as representations. All interested parties must verify accuracy and your solicitor must verify tenure/lease information, fixtures & fittings and, where the property has been extended/converted, planning/building regulation consents. All dimensions are approximate and quoted for guidance only as are floor plans which are not to scale and their accuracy cannot be confirmed. Reference to appliances and/or services does not imply that they are necessarily in working order or fit for the purpose.
 
We are pleased to offer our customers a range of additional services to help them with moving home. None of these services are obligatory and you are free to use service providers of your choice. Current regulations require all estate agents to inform their customers of the fees they earn for recommending third party services. If you choose to use a service provider recommended by Wards, details of all referral fees can be found at the link below. If you decide to use any of our services, please be assured that this will not increase the fees you pay to our service providers, which remain as quoted directly to you.

Council Tax band: C

Tenure: Freehold

Property LOCATION

Show Map
Powered by Apex27