Property SEARCH

3 bed Semi-Detached Bungalow

£600,000

Willow Walk, Culverstone, Kent

AVAILABLE


Property FEATURES

  • Ideal for those downsizing with 2 bedrooms to ground floor
  • Walking distance to local shops and amenities at Culverstone
  • Impressive loft conversion providing additional bedroom and bathroom
  • Substantial rear garden with summer house and garage
  • Catchment to local schools
View Brochure

Property DESCRIPTION

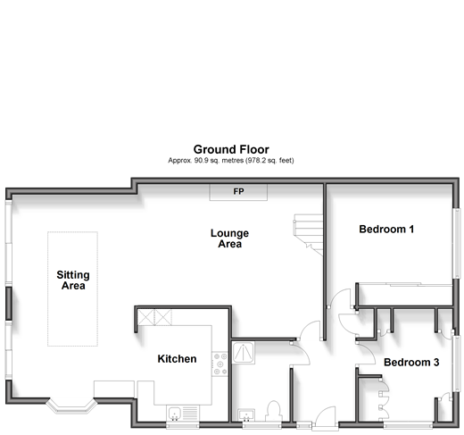
Are you looking to purchase a semi-detached chalet bungalow offering a multitude of outdoor space? This beautiful home has been loved by its current homeowners and would be the perfect property for a starting a family or a manageable place to downsize to! The bungalow is in a sought after location, with great catchment for schools, local amenities, and transport links! There is amazing entertaining space with the summer house and greenhouse in the garden, as well as a handy garage. There is great potential to extend upstairs over the downstairs bedrooms (subject to usual consents). What's not to love? Room sizes:HallwayLounge Area: 18'4 x 15'2 (5.59m x 4.63m)Sitting Area: 20'1 x 11'11 (6.13m x 3.63m)Kitchen: 11'1 x 8'11 (3.38m x 2.72m)Bedroom 1: 12'5 x 12'1 (3.79m x 3.69m)Bedroom 3: 11'1 x 9'4 (3.38m x 2.85m)Shower Room: 8'0 x 5'9 (2.44m x 1.75m)LandingBedroom 2: 12'3 x 10'7 (3.74m x 3.23m)Bathroom: 11'8 x 7'10 (3.56m x 2.39m)Garden Room: 13'11 x 9'10 (4.24m x 3.00m)Garage: 23'1 x 10'6 (7.04m x 3.20m)DrivewayFront GardenRear Garden 
The information provided about this property does not constitute or form part of an offer or contract, nor may it be regarded as representations. All interested parties must verify accuracy and your solicitor must verify tenure/lease information, fixtures & fittings and, where the property has been extended/converted, planning/building regulation consents. All dimensions are approximate and quoted for guidance only as are floor plans which are not to scale and their accuracy cannot be confirmed. Reference to appliances and/or services does not imply that they are necessarily in working order or fit for the purpose.
 
We are pleased to offer our customers a range of additional services to help them with moving home. None of these services are obligatory and you are free to use service providers of your choice. Current regulations require all estate agents to inform their customers of the fees they earn for recommending third party services. If you choose to use a service provider recommended by Wards, details of all referral fees can be found at the link below. If you decide to use any of our services, please be assured that this will not increase the fees you pay to our service providers, which remain as quoted directly to you.

Council Tax band: E

Tenure: Freehold

Property LOCATION

Show Map
Powered by Apex27