Property SEARCH

3 bed Detached Bungalow

£575,000

Stile Bridge Lane, Linton, Maidstone, Kent

AVAILABLE


Property FEATURES

  • Exclusive development of 4 new build detached bungalows
  • Eco friendly living, solar panels and electric charging point
  • 10 year structural warranty
  • Sociable open plan layout with bi fold doors opening
  • Quiet semi rural location, on the outskirts of villages with local shops and amenities, offering the best of both worlds
View Brochure

Property DESCRIPTION

***50% Reserved - don't miss out on these stunning homes, book to view now!*** Tucked away in a quiet and picturesque semi rural location on an exclusive development of just 4 properties in an electric gated community on a private drive, this detached bungalow has been finished to a high standard throughout, with a superb open plan living space, with planning permission granted for a garage. Offering eco friendly living with solar panels and an electric car charging point. Just a short drive to local shops and amenities in neighbouring villages, with mainline train links to London at nearby Staplehurst and Marden stations.  
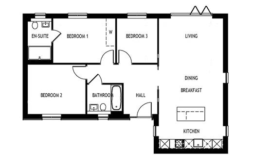
Please refer to the footnote regarding the services and appliances. Room sizes:Entrance HallKitchen/Breakfast/Dining Area: 17'8 x 13'7 (5.39m x 4.14m)Living Area: 13'7 x 9'1 (4.14m x 2.77m)Bedroom 1: 13'2 x 9'3 (4.02m x 2.82m)En Suite Shower Room: 8'9 x 4'9 (2.67m x 1.45m)Bedroom 2: 12'2 x 10'5 (3.71m x 3.18m)Bedroom 3: 9'3 x 8'6 (2.82m x 2.59m)Bathroom: 7'3 x 6'2 (2.21m x 1.88m)Front and Rear GardensOff Road ParkingElectric Car Charging Point 
The information provided about this property does not constitute or form part of an offer or contract, nor may it be regarded as representations. All interested parties must verify accuracy and your solicitor must verify tenure/lease information, fixtures & fittings and, where the property has been extended/converted, planning/building regulation consents. All dimensions are approximate and quoted for guidance only as are floor plans which are not to scale and their accuracy cannot be confirmed. Reference to appliances and/or services does not imply that they are necessarily in working order or fit for the purpose.
 
We are pleased to offer our customers a range of additional services to help them with moving home. None of these services are obligatory and you are free to use service providers of your choice. Current regulations require all estate agents to inform their customers of the fees they earn for recommending third party services. If you choose to use a service provider recommended by Wards, details of all referral fees can be found at the link below. If you decide to use any of our services, please be assured that this will not increase the fees you pay to our service providers, which remain as quoted directly to you.

Tenure: Freehold

Property LOCATION

Show Map
Powered by Apex27