Property SEARCH

2 bed Apartment

£240,000

Tankerton Road, Tankerton, Whitstable

FOR SALE


Property FEATURES

  • Contemporary Second-Floor Apartment
  • High Specification Finish
  • Moments from Shops & Amenities
  • Close to Tankerton Slopes & Seafront
  • Whitstable Station 0.8 Miles
  • Open-Plan Living Space
  • Kitchen with Integrated Appliances
  • 2 Double Bedrooms
  • Stylish Bathroom
  • No Onward Chain

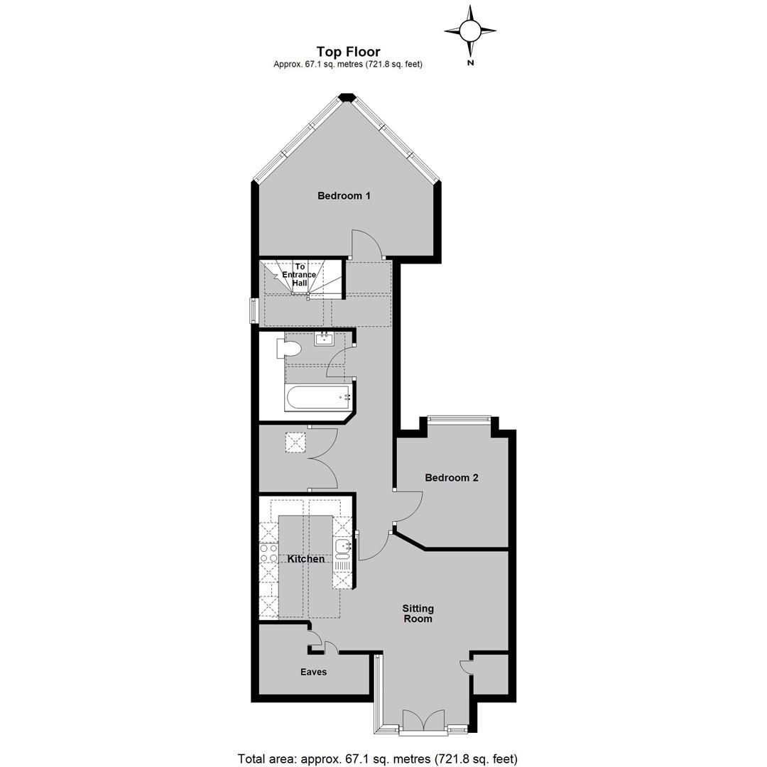
Property DESCRIPTION

A stylish, modern second-floor apartment conveniently positioned moments away from the shops and amenities on Tankerton Road, a short and leisurely stroll from Tankerton Slopes and seafront and less than a mile from Whitstable mainline station.

This spacious apartment has been finished to a high specification and provides contemporary open-plan living accommodation comprising a generous living room incorporating a smartly fitted kitchen with integrated appliances, two double bedrooms and a stylish bathroom.

No onward chain.

Property LOCATION

Show Map
Powered by Apex27