Property SEARCH

2 bed Detached Bungalow

£450,000

Chestnut Avenue, Walderslade, Chatham, ME5

SSTC


Property FEATURES

  • Detached Bungalow
  • No Onward Chain
  • Two/Three Bedroom
  • Place Your Own Creative Stamp
  • Opportunity to Extend (STRPP)
  • Conservatory
  • Garage & Driveway
  • Approx 200ft x 40ft Plot

Property DESCRIPTION

Being offered with no forward chain is this two/three bedroom detached bungalow. Rarely do properties become available in this location and with the potential to renovate/extend if required. The property sits on a good size flat plot with detached garage with power and driveway to the side. Located in a popular location with easy access to local schools and shops and bus services into the town centre.

On entering you are welcomed to the hallway which leads to the lounge with bay window to the front. Two good size bedrooms, a separate dining room which could be utilised as a third bedroom, a good size kitchen offering a range of fitted wall and base units, double oven and hob, washing machine and fridge to remain. Also has the benefit of conservatory overlooking the well tendered garden and there is also large loft space. Externally the rear garden is mainly laid to lawn with a variety of trees and shrubs, with a brick built shed. A lovely garden to entertain with family and friends.

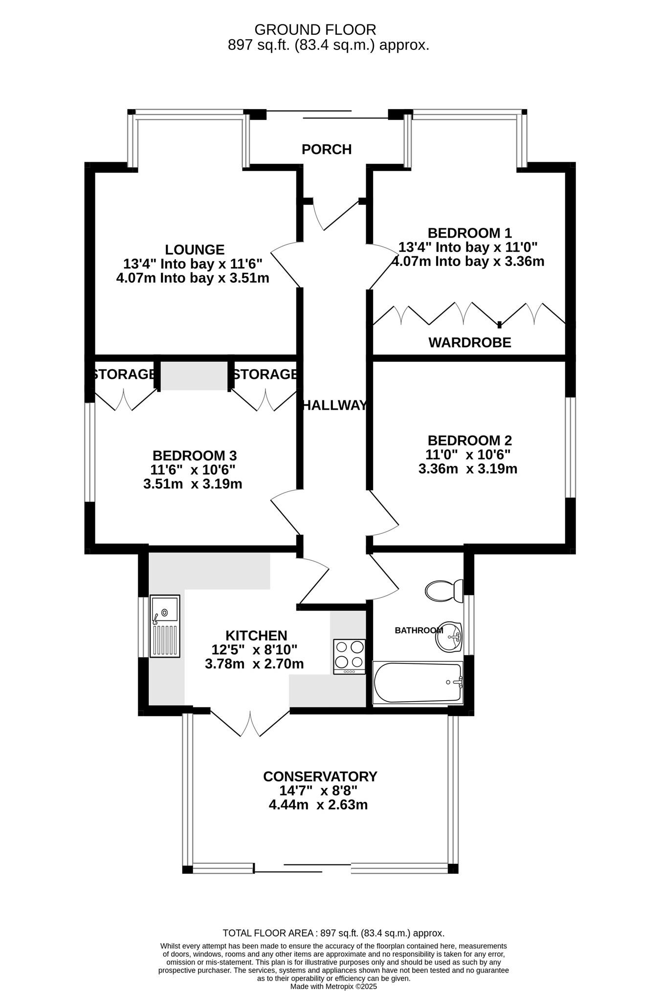
Ground Floor


Porch


Lounge
13' 4" x 11' 6" (4.06m x 3.51m)

Kitchen
12' 5" x 8' 10" (3.78m x 2.69m)

Conservatory
14' 7" x 8' 8" (4.45m x 2.64m)

Bedroom 1
13' 4" x 11' 10" (4.06m x 3.61m)

Bedroom 2
11' 0" x 10' 6" (3.35m x 3.20m)

Bedroom 3
11' 6" x 10' 6" (3.51m x 3.20m)

Bathroom

Property LOCATION

Show Map
Powered by Apex27