Property SEARCH

1 bed Flat

£260,000

Tankerton Road, Whitstable

FOR SALE


Property FEATURES

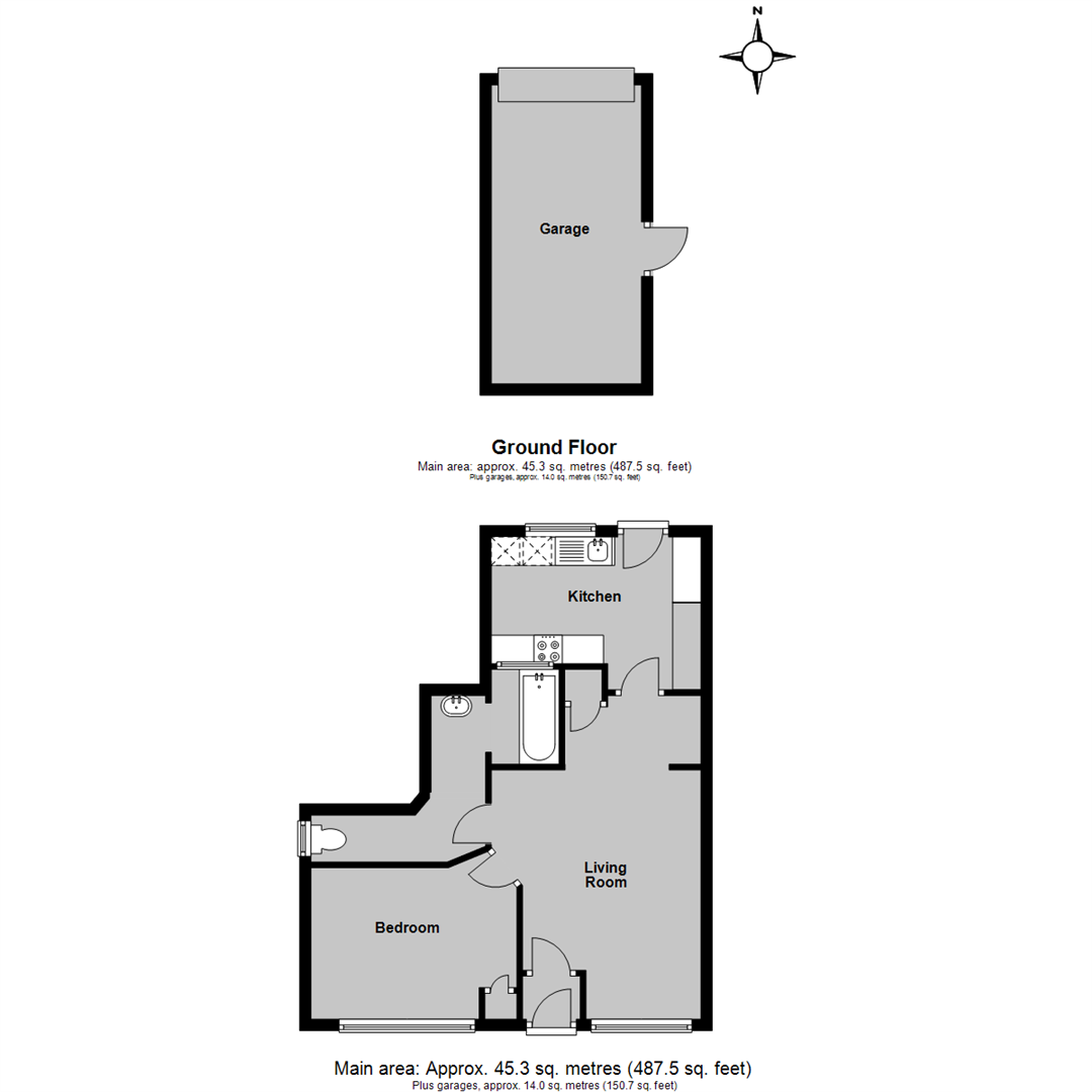
  • Ground-Floor Garden Flat
  • Prime Location in Central Tankerton
  • Whitstable Station 1 mile
  • Bright & Spacious Accommodation
  • Smartly Presented Throughout
  • 59 ft (18 m) Private Rear Garden
  • Detached Garage providing Off Street Parking
  • Remainder of 999-Year Lease
  • No Onward Chain

Property DESCRIPTION

A bright and spacious ground-floor garden flat in the heart of central Tankerton, within close proximity of shops, bus routes, Tankerton Slopes and seafront, and within walking distance of Whitstable station (1 mile).

The generously proportioned and smartly presented accommodation is arranged to provide a private entrance with an entrance porch, a living room, a kitchen, a double bedroom, and a well-appointed bathroom.

Outside, there is a private rear garden extending to 59ft (18 m) and a detached garage, which is accessed via Graystone Road.

The property is being sold with the remainder of a 999-year lease and a share of the freehold. No onward chain.

Property LOCATION

Show Map
Powered by Apex27