Property SEARCH

4 bed Chalet

£550,000

Hempstead Road, Hempstead, Gillingham, ME7

AVAILABLE


Property FEATURES

  • Spacious Detached Chalet Bungalow
  • 4 Large Bedrooms
  • Ensuite & 2 Bath/Shower Rooms
  • Driveway For Several Cars
  • Stunning Landscaped Garden With Summerhouse
  • 2 Separate Reception Rooms
  • Fitted Log Burner
  • Kitchen/Breakfast Room

Property DESCRIPTION

** Guide Price £550,000 - £575,000 **

A Spacious & Versatile 4-Bedroom Detached Chalet Bungalow with Landscaped Garden & Ample Parking! This beautifully presented four-bedroom detached chalet bungalow offers spacious and flexible accommodation, ideal for modern family living. Situated in sought-after Hempstead, which is a desirable residential area, the property boasts a thoughtfully landscaped rear garden with a summerhouse, a generous driveway to the front, and a neutral interior throughout.

Upon entering the property, you're welcomed by a practical entrance porch with built-in shoe and coat storage, leading into a bright and airy entrance hall. The ground floor accommodation includes a well-proportioned living room featuring a fitted log burner, perfect for cosy evenings, and a separate dining room ideal for entertaining. The kitchen/breakfast room offers ample workspace and storage, making it the hub of the home. Also on the ground floor is a versatile study/family room, offering flexibility for home working or playroom use, along with a well-appointed bathroom. Upstairs, the property continues to impress with three spacious double bedrooms. The master bedroom benefits from an en-suite shower room, while the second bedroom features fitted wardrobes. There is also a generous single bedroom and a contemporary family shower room on this floor. Outside, the landscaped rear garden provides a private and tranquil setting, complete with a summerhouse with power supply, perfect for a home office, studio, or relaxing retreat. To the front, a large driveway provides off-road parking for several vehicles.

This superb home combines comfort, style, and functionality, making it a must-see for buyers looking for space and flexibility in a desirable location. Early viewing is highly recommended so call the Greyfox Rainham team to arrange a viewing!

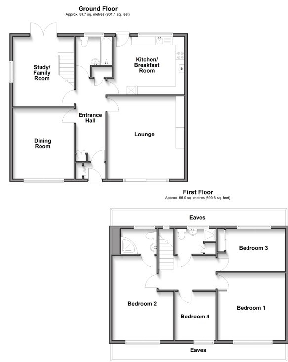
Ground Floor


Entrance Hall


Living Room
16' 1" x 14' 8" (4.90m x 4.47m)

Kitchen/Breakfast Room
13' 6" x 11' 2" (4.11m x 3.40m)

Dining Room
13' 5" x 11' 7" (4.09m x 3.53m)

Study/Family Room
13' 4" x 11' 7" (4.06m x 3.53m)

WC


First Floor


Bedroom 1
16' 4" x 11' 4" (4.98m x 3.45m)

Bedroom 2
13' 8" x 12' 9" (4.17m x 3.89m)

Ensuite


Bedroom 3
11' 4" x 7' 9" (3.45m x 2.36m)

Bedroom 4
9' 7" x 6' 7" (2.92m x 2.01m)

Shower room

Property LOCATION

Show Map
Powered by Apex27