Property SEARCH

2 bed Detached House

£750,000

Castle Road, Tankerton, Whitstable

FOR SALE


Property FEATURES

  • Substantial Freehold Building
  • High Desirable Location
  • Opportunity to Create an Exceptional Family Home
  • Far Reaching Views Towards the Sea
  • Garden, Balcony & Terrace
  • Detached Double Garage
  • Off Street Parking
  • Vacant Possession
  • No Onward Chain

Property DESCRIPTION

An exciting opportunity to acquire a substantial freehold building enjoying an elevated position in a sought-after and highly convenient location, conveniently positioned for access to central Whitstable, Tankerton slopes and seafront, cafés, restaurants, and Whitstable station (400 metres). The area has excellent local schooling options.

There is potential to remodel the building to create an exceptional family home over three floors, which would benefit from generous accommodation and far-reaching views towards the sea (subject to all necessary consents and approvals being obtained).

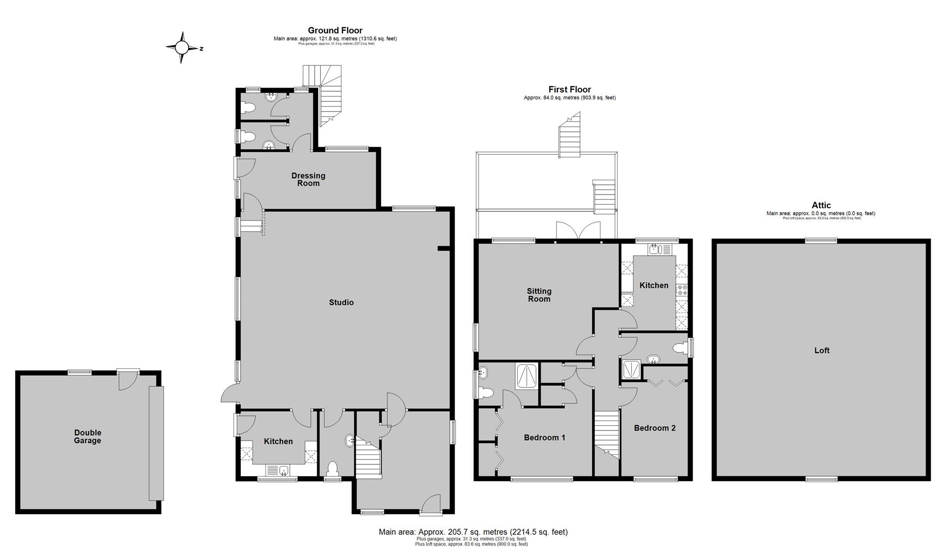
Being sold with vacant possession and no onward chain, the building currently comprises a large ground-floor commercial premises, including a dance studio, kitchen, dressing room, and cloakrooms. Change of use to residential has been granted under reference CA/24/02278.

The first floor is occupied by a spacious two-bedroom maisonette flat which benefits from a large balcony and terrace to the rear, and its own private entrance via an external staircase. In addition, there is a large loft space which is thought suitable for conversion to create additional living accommodation.

To the rear, there is a lawned garden and a detached double garage, and ample off-street parking, accessed via a shingled driveway from Teynham Road.

Interested parties are advised to make their own enquiries relating to planning matters via Canterbury City Council; www.canterbury.gov.uk/planning.

Property LOCATION

Show Map
Powered by Apex27