Property SEARCH

4 bed Semi-detached House

£975,000

Marine Crescent, Tankerton, Whitstable

FOR SALE


Property FEATURES

  • Exceptional Contemporary Home
  • Prime Position on Tankerton Seafront
  • Far Reaching Sea Views
  • Moments from the Beach, Shops & Amenities
  • Mainline Station 0.6 Miles
  • Extended & Remodelled in Enviable Style
  • Open-Plan Living Space
  • 4 Bedrooms & 3 Bathrooms
  • South Facing Garden with Studio
  • Off Street Parking

Property DESCRIPTION

'Red Sands' is an exceptional family home in a prime position on Tankerton seafront, from where it commands far-reaching views over Whitstable Bay and towards the Isle of Sheppey beyond. The house is conveniently positioned moments from the beach and within close proximity of shops and amenities, bus routes, and mainline train station (0.6 miles).

This bright, contemporary property has been created following a significant programme of remodelling by the architect owner, with extensions to the side and rear on two levels, and generous glazing to make the most of the sea views.

The house now provides luxuriously appointed, largely open-plan living space, presented in enviable style throughout. The interior features bespoke joinery and finishes include exposed concrete blocks, oak ply and terrazzo floor tiles.
An air source heat pump helps to reduces running costs.

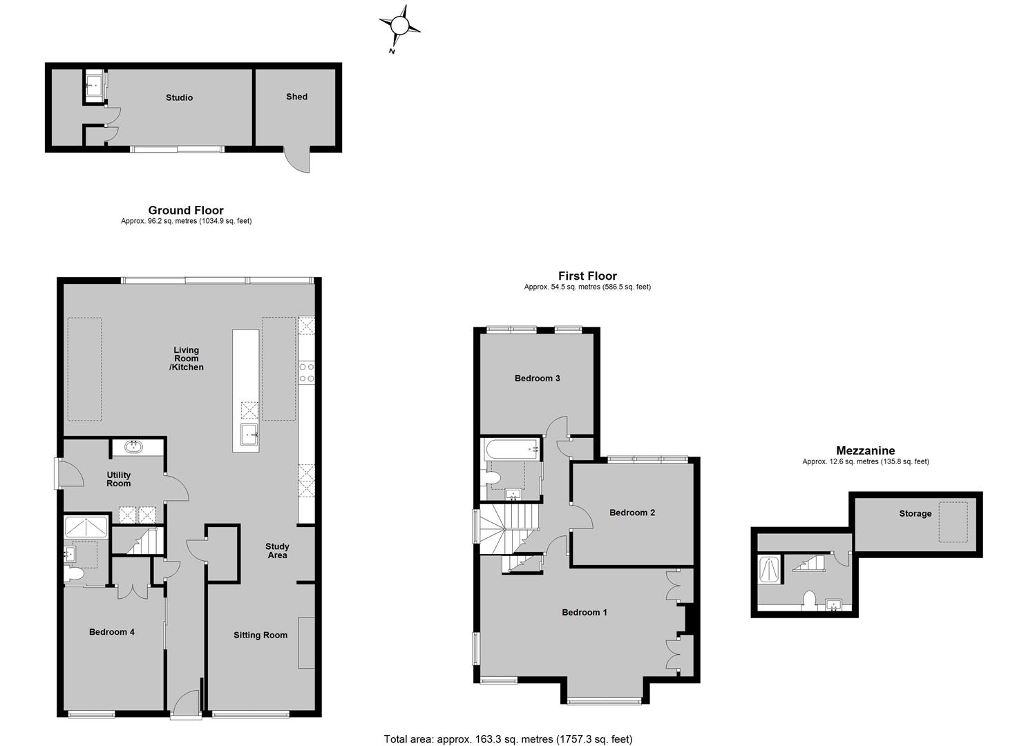
The generous and flexible accommodation is arranged to provide an entrance hall opening to a large open-plan living room which overlooks the South facing garden and incorporates a bespoke kitchen, a study area leading to a sea facing sitting room with wood-buring stove, and away from the main living space there is a guest bedroom with en-suite shower room, and a utility room. To the first floor there are three double bedrooms and two bathrooms, including an en-suite shower room to the principal bedroom, which has superb sea views.

The thoughtfully landscaped garden extends to 68ft (20.7m) and incorporates a studio, a raised decked seating area, a barbeque station beneath a timber pergola, and a vegetable garden. The front garden is planted to reflect it's coastal setting, and a driveway provides off street parking for several vehicles.

Property LOCATION

Show Map
Powered by Apex27