Property SEARCH

4 bed Detached House

£450,000

Parker Close, Parkwood, Gillingham, ME8

AVAILABLE


Property FEATURES

  • Detached Family Home
  • Four Double Bedrooms
  • Popular Parkwood Location
  • Integral Garage & Large Driveway
  • Generous Open Plan Lounge/Diner & Sunny Conservatory
  • Family Bathroom & Downstairs W/C
  • Well Located For Amenities, Shops, Schools & Great Transport Links
  • Beautiful East Facing Rear Garden Measuring Approx 47ft x 32ft

Property DESCRIPTION

** Guide Price £450,000 - £475,000 **

A spacious and well maintained four bedroom detached family home situated in a quiet residential area, offering excellent transport links and proximity to local amenities, good rated schools and walking distance to Parkwood Shopping Centre. The welcoming entrance hall provides access to an integral garage, currently utilised as additional storage and a utility area, a convenient W/C, and a charming country-style kitchen with a dedicated breakfast area, perfect for relaxed family mornings. The generous dining area flows seamlessly into the bright and airy lounge, featuring a marble gas fireplace as the focal point. The sunny conservatory offers tranquil views of the beautifully maintained east-facing garden, ideal for enjoying morning sun. Upstairs, you'll find the family bathroom complete with a shower over the bath and four generously sized double bedrooms, three benefitting from built-in storage, while the second bedroom includes a wash basin, offering added practicality. The rear garden is a peaceful haven, boasting a blend of patio and lawn areas bordered by well-established shrubs and a mature eucalyptus tree. To the front, a large driveway provides ample off-street parking for multiple vehicles, alongside a neat lawn. Properties offering this much space and in such a desirable location are popular and will not be available for long, so call the Greyfox sales team in Rainham to arrange your viewing today!

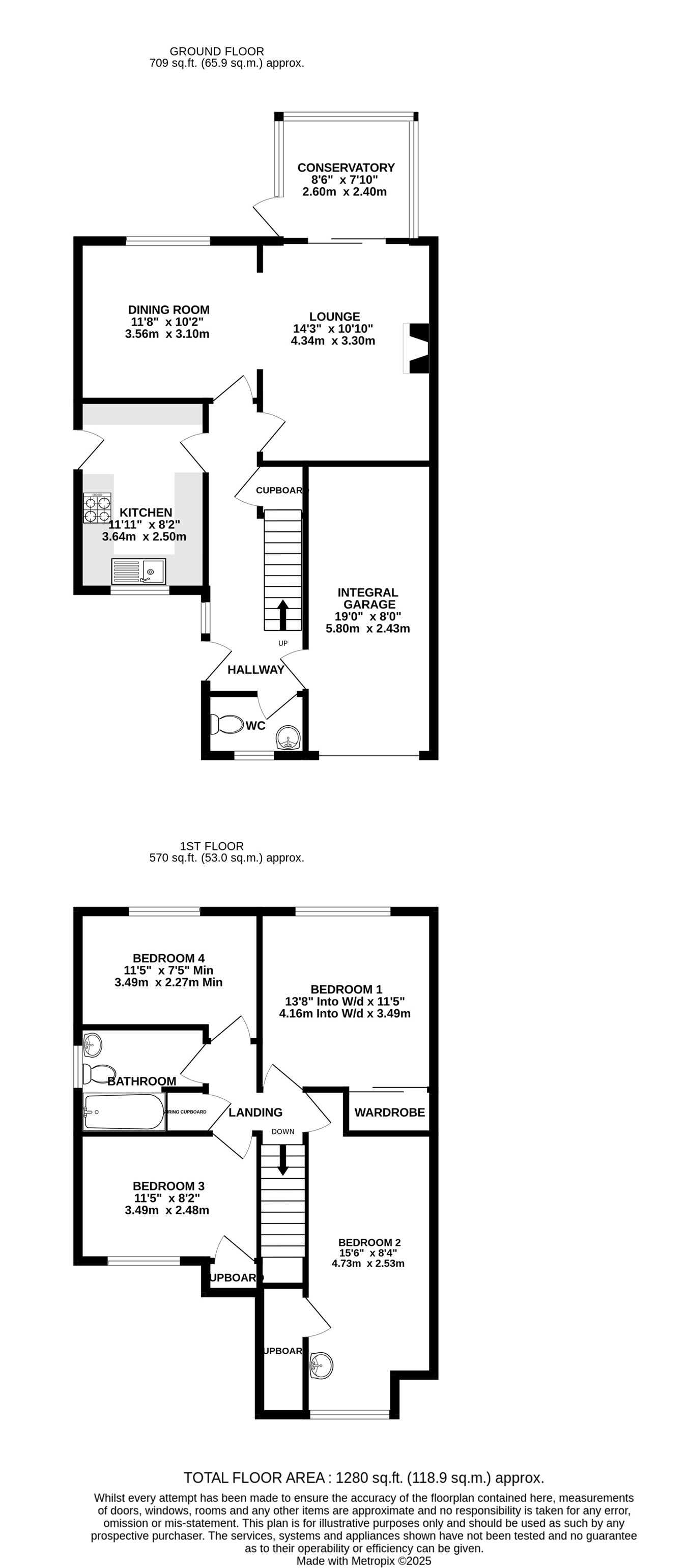
Ground Floor


Dining Room
11' 8" x 10' 2" (3.56m x 3.10m)

Lounge
14' 3" x 10' 10" (4.34m x 3.30m)

Kitchen
11' 11" x 8' 2" (3.63m x 2.49m)

WC
5' 10" x 3' 09" (1.78m x 1.14m)

Internal Garage
19' 0" x 8' 0" (5.79m x 2.44m)

Conservatory
8' 6" x 7' 10" (2.59m x 2.39m)

First Floor


Bedroom 1
13' 8" x 11' 5" (4.17m x 3.48m)

Bedroom 2
15' 6" x 8' 4" (4.72m x 2.54m)

Bathroom
8' 0" x 6' 06" (2.44m x 1.98m)

Bedroom 3
11' 5" x 8' 2" (3.48m x 2.49m)

Bedroom 4
11' 5" x 7' 5" (3.48m x 2.26m)

Property LOCATION

Show Map
Powered by Apex27