Property SEARCH

4 bed Detached House

£525,000

Phoenix Drive, Maidstone

AVAILABLE


View Brochure

Property DESCRIPTION

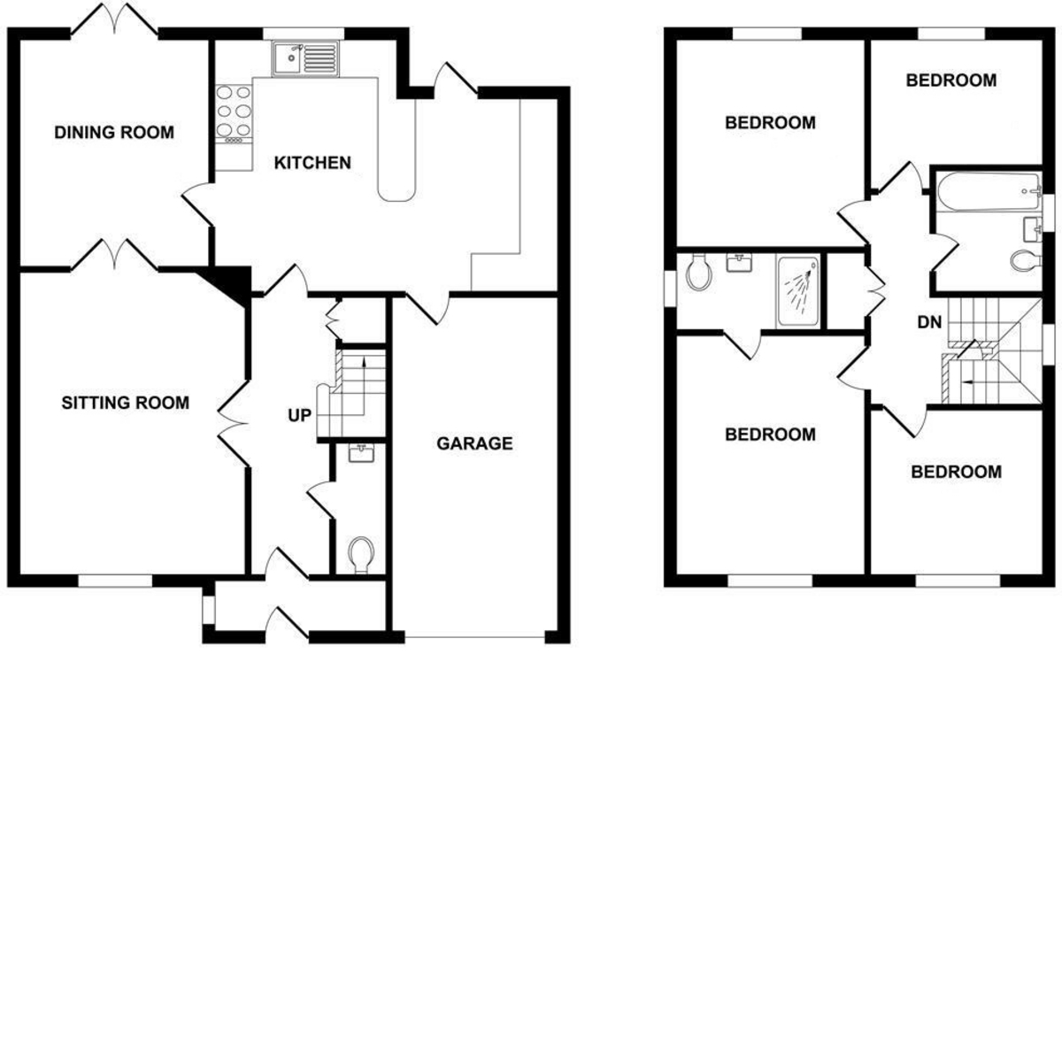
CHAIN-FREE - GUIDE PRICE £525,000 - £550,000 - Situated in the picturesque village of Wateringbury, this charming detached home on Phoenix Drive offers the perfect balance of comfort, space, and modern living. Built in 1987, the property spans an impressive 1,399 sq. ft. of light-filled accommodation, making it an exceptional choice for families.Step inside to a welcoming spacious lounge, ideal for both relaxing evenings and lively gatherings. The extended kitchen is a true highlight, designed with ample space for cooking, dining, and entertaining - the heart of the home where family and friends can come together. Upstairs, four generously sized bedrooms provide comfort and privacy for all, complemented by two well-appointed bathrooms to make busy mornings a breeze.Outside, the property benefits from a driveway with off-road parking and a garage for extra storage or secure vehicle space. The west-facing garden is perfect for afternoon sunshine, al fresco dining, or simply unwinding in a peaceful setting.Located in a quiet, friendly community with excellent local amenities, this home offers an appealing lifestyle - a tranquil retreat with easy access to everyday conveniences. Whether you're looking to raise a family or simply enjoy the charm of village life, this chain-free property on Phoenix Drive is a must-see.


haart is the seller's agent for this property. Your conveyancer is legally responsible for ensuring any purchase agreement fully protects your position. We make detailed enquiries of the seller to ensure the information provided is as accurate as possible. Please inform us if you become aware of any information being inaccurate

Property LOCATION

Show Map
Powered by Apex27