Property SEARCH

4 bed Detached House

£2,250,000

Preston Parade, Whitstable, Kent

AVAILABLE


Property FEATURES

  • The images marked "Virtual Stager" show styling potential only. All other images show the property as currently presented.
  • Stunning bespoke marine residence rebuilt in 2009
  • Uninterrupted sea views and direct beach access
  • On a quiet, desirable private road
  • Flexible accommodation over three floors
  • Driveway, garage, garden and workshop
  • Walking distance to local shops, restaurants and station
  • Above-average EPC energy efficiency rating A (95)
View Brochure

Property DESCRIPTION

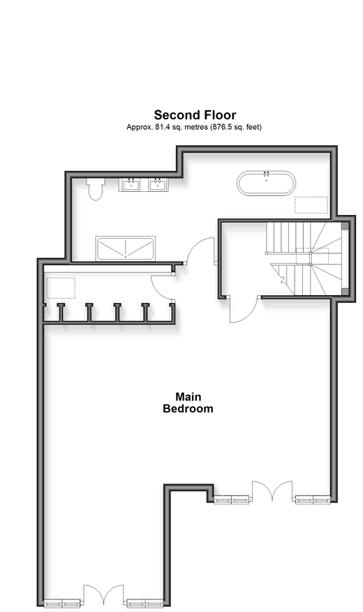
To take advantage of uninterrupted sea views the front of this stunning three storey marine residence is virtually all glass. It was imaginatively designed by a construction specialist for his own use and built in 2009 to the highest standard and would make a wonderful permanent home or an excellent holiday and weekend retreat. It is located along a quiet private road adjacent to the sea and is approached via a resin driveway leading to the integral garage and the contemporary front door. The hallway includes a cloakroom and internal access to the garage, while the superb open plan dual aspect living space is the centrepiece of this home. It includes a spacious dining area adjacent to full height windows overlooking the sea, a sophisticated kitchen with black units housing up market built in appliances and a breakfast bar plus a good sized sitting area with space for a fireplace, close to six bi-fold doors. The tiled flooring continues through the bi-fold doors onto the terrace while an inner hall leads to a utility room, a spacious study with fitted shelving, understairs storage and stairs to the upper floors. The galleried landing leads to a gorgeous lounge with a wall of full height windows offering superb sea views and a door to the large balcony where you can enjoy a panoramic vista as far as Essex. There is a family bathroom and three double bedrooms including one with an en-suite shower room and a walk-in wardrobe and another featuring a walk-in dressing room/wardrobe, full height windows and French doors to the balcony. On the second floor you will find the amazing main bedroom incorporating two sets of trapezoid windows and French doors to Juliette balconies, a charming seating area and a bedroom where you enjoy the views from your bed. There is also a dressing room/walk-in wardrobe and a luxurious bathroom. Outside the enclosed rear garden includes the tiled terrace, a decked patio with a hot tub and a lawn leading to a pergola covered patio. There is a large workshop/outbuilding, a side passage and gate to the driveway. What the Owner says:
We spent 18 months building our dream home and have been delighted with the results. We love the location and Whitstable with its original harbour, individual shops, bars and excellent restaurants and a station where the fast train to St Pancras takes an hour and a quarter. There are excellent medical facilities and various primary schools including the Whitstable and Seasalter Endowed rated Outstanding by Ofsted. Sports facilities include bowls, tennis, the Whitstable and Seasalter Golf Club, Chestfield Golf Club and the Whitstable Yacht Club. Canterbury is about not far with its historical buildings, high street stores, individual shops, bars and restaurants. There are also theatres, three universities, grammar and public schools and Canterbury West station, where the high speed train to St Pancras takes less than an hour. Room sizes:HallwayStudy: 11'7 x 8'1 (3.53m x 2.47m)Utility Room: 7'3 x 5'1 (2.21m x 1.55m)CloakroomKitchen/Dining Area: 31'3 (9.53m) x 16'5 (5.01m) narrowing to 8'11 (2.72m)Sitting Area: 16'6 x 15'9 (5.03m x 4.80m)LandingBedroom 2: 11'7 x 11'6 (3.53m x 3.51m)En Suite Shower RoomBalconyLounge: 19'8 x 16'1 maximum (6.00m x 4.91m)Family Bathroom: 6'4 x 6'1 (1.93m x 1.86m)Bedroom 4: 15'8 x 8'1 (4.78m x 2.47m)Bedroom 3: 12'1 x 11'11 (3.69m x 3.63m)En Suite Shower RoomWalk In WardrobeLandingMain Bedroom: 26'0 (7.93m) x 24'11 (7.60m) narrowing to 18'3 (5.57m)Walk In WardrobeEn Suite Bathroom: 23'6 x 9'6 maximum (7.17m x 2.90m)DrivewayGarage: 16'11 x 10'4 (5.16m x 3.15m)Shed: 23'9 x 11'5 (7.24m x 3.48m)Rear Garden 
The information provided about this property does not constitute or form part of an offer or contract, nor may it be regarded as representations. All interested parties must verify accuracy and your solicitor must verify tenure/lease information, fixtures & fittings and, where the property has been extended/converted, planning/building regulation consents. All dimensions are approximate and quoted for guidance only as are floor plans which are not to scale and their accuracy cannot be confirmed. Reference to appliances and/or services does not imply that they are necessarily in working order or fit for the purpose.
 
We are pleased to offer our customers a range of additional services to help them with moving home. None of these services are obligatory and you are free to use service providers of your choice. Current regulations require all estate agents to inform their customers of the fees they earn for recommending third party services. If you choose to use a service provider recommended by Fine & Country, details of all referral fees can be found at the link below. If you decide to use any of our services, please be assured that this will not increase the fees you pay to our service providers, which remain as quoted directly to you.

Council Tax band: F

Tenure: Freehold

Property LOCATION

Show Map
Powered by Apex27