Property SEARCH

5 bed Semi-detached House

£475,000

Hambrook Road, Holborough Lakes, Snodland, Kent

AVAILABLE


Property FEATURES

  • The images marked "Virtual Stager" show styling potential only. All other images show the property as currently presented.
  • Fantastic size family home on the prestigious Holborough Lakes
  • Handy allocated parking for 2 cars
  • Lovely kitchen/diner which is ideal for entertaining
  • With 2 bathrooms plus an en-suite shower room, it's perfect for families
  • All bedrooms are an amazing size and one even has a walk in wardrobe
  • Above-average EPC energy efficiency rating B (81)
View Brochure

Property DESCRIPTION

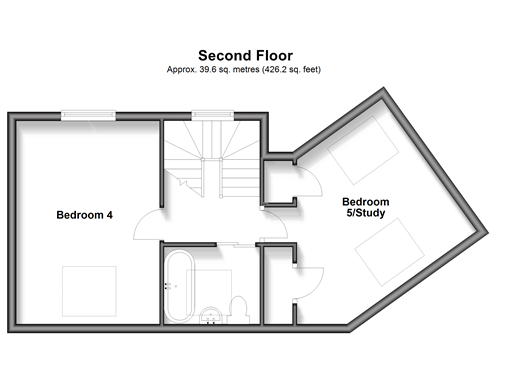
Come and take a look at this well laid out chain free semi-detached townhouse situated on the stunning Holborough Lakes development. There is easy parking with 2 allocated spaces, so no stress returning home after a long day. Arrive home to a pretty picket fence and the perfect layout for family life - this could be your forever home. Room sizes:Entrance HallCloakroomLounge: 17'8 x 14'2 (5.39m x 4.32m)Kitchen/Diner: 17'7 x 10'6 (5.36m x 3.20m)LandingBedroom 1: 10'11 x 10'5 (3.33m x 3.18m)Walk in WardrobeEn-Suite Shower RoomBedroom 2: 14'9 x 8'9 (4.50m x 2.67m)Bedroom 3: 9'8 x 8'3 (2.95m x 2.52m)Family BathroomLandingBedroom 4: 14'6 x 10'4 (4.42m x 3.15m)Bedroom 5/Study: 11'10 x 10'11 (3.61m x 3.33m)BathroomFront and Rear Gardens2 x Allocated Parking Spaces 
The information provided about this property does not constitute or form part of an offer or contract, nor may it be regarded as representations. All interested parties must verify accuracy and your solicitor must verify tenure/lease information, fixtures & fittings and, where the property has been extended/converted, planning/building regulation consents. All dimensions are approximate and quoted for guidance only as are floor plans which are not to scale and their accuracy cannot be confirmed. Reference to appliances and/or services does not imply that they are necessarily in working order or fit for the purpose.
 
We are pleased to offer our customers a range of additional services to help them with moving home. None of these services are obligatory and you are free to use service providers of your choice. Current regulations require all estate agents to inform their customers of the fees they earn for recommending third party services. If you choose to use a service provider recommended by Wards, details of all referral fees can be found at the link below. If you decide to use any of our services, please be assured that this will not increase the fees you pay to our service providers, which remain as quoted directly to you.

Council Tax band: E

Tenure: Freehold

Property LOCATION

Show Map
Powered by Apex27