Property SEARCH

4 bed Detached House

£500,000

The Fairway, Herne Bay, CT6 7TW

AVAILABLE


Property FEATURES

  • Large Detached House
  • Four Double Bedrooms
  • Double Garage & Large Driveway
  • Ensuite To Master Bedroom
  • Sought After Development
  • Spacious Rooms Throughout
  • Modern Kitchen/Diner
  • Good Size Rear Garden
  • EPC Rating: 74 C

Property DESCRIPTION

Description
This substantial four-bedroom detached residence is situated on The Fairway, one of Herne Bay’s most sought-after developments. Offering an enviable blend of size, modern comfort, and location, the property is ideally placed within easy reach of Herne Bay High School, making it particularly appealing to families. The neighbourhood itself is well-regarded for its peaceful atmosphere and access to local amenities, including parks, shops, and coastal walks, while excellent transport links connect you to both Canterbury and London.

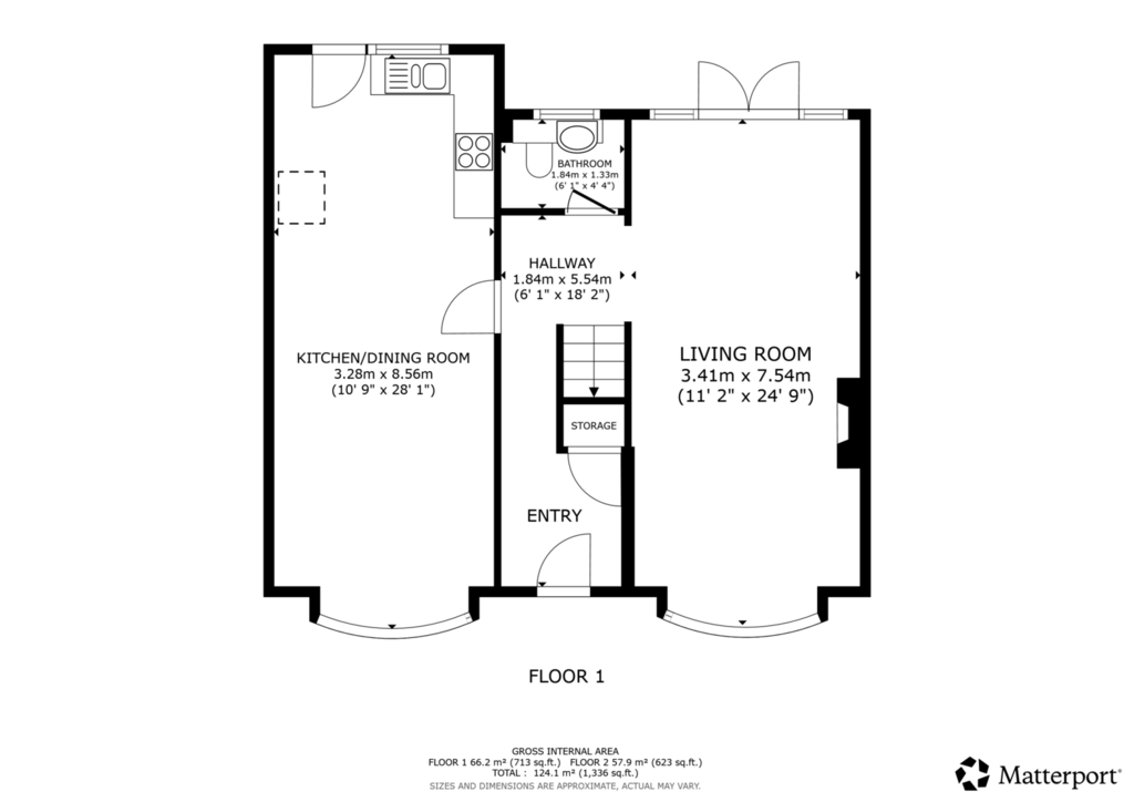
Upon entering the property, you’re welcomed into a spacious hallway that leads to a generously proportioned lounge, perfect for family living and entertaining guests. The heart of the home is undoubtedly the large, modern kitchen/diner, fitted with sleek cabinetry and ample space for dining and socialising. A practical downstairs cloakroom completes the ground floor, offering everyday convenience.

Upstairs, the property continues to impress with four double bedrooms, each offering plenty of space for family members or guests. The principal bedroom benefits from its own ensuite shower room, while a well-appointed family bathroom serves the remaining bedrooms.

Outside, the rear garden provides a wonderful space for relaxation or play, with a good-sized lawn and patio area ideal for summer barbecues. To the front, a large driveway accommodates parking for up to four vehicles and leads to a detached double garage, offering further flexibility for storage or potential conversion, subject to planning.

Properties of this calibre in such a desirable location are rarely available. With its generous living space, practical layout, and proximity to both local schools and amenities, this home presents a superb opportunity for those seeking a long-term family residence in Herne Bay.

Declaration of Personal Interest: In accordance with The Estate Agents Act 1979, we wish to disclose that the seller of this property is a relative of a staff member at David Clarke Estate Agents.Note - This property is currently owned by an employee of David Clarke Estate Agents.

WHAT TO DO IF YOU HAVE A PROPERTY TO SELL If you're interested in buying a property and have one to sell, don't worry - we're here to help! Our estate agents can provide you with a free property valuation and assist you throughout the selling process. We understand that selling a property can be stressful, which is why we offer this service to make things easier for you. We're committed to providing you with a seamless buying and selling experience, and we're always here to help. So why wait? Get in touch with us today and let us guide you through the process!


WHAT TO DO NEXT To view our properties, please book an appointment beforehand. If you make an acceptable offer, please note that we require some documents from you before taking the property off the market. These include a copy of your identification, a copy of your mortgage agreement in principle, proof of deposit, and proof of cash if you're purchasing without a mortgage. If you're using funds from a related sale, we'll need the name of your selling agent, and the name of your solicitor, who will act for you in the purchase. Once we have all these, we can remove the property from the market.


NOTE Please note that sizes and dimensions provided are approximate and may vary from the actual measurements.


NOT READING THIS ON THE AGENTS WEBSITE? Don't miss out on the complete experience of this property. See all it has to offer by clicking the 'Explore the full 3D tour from this Agent' link below.

Property LOCATION

Show Map
Powered by Apex27