Property SEARCH

3 bed Terraced

£499,950

Argyle Road, Whitstable

FOR SALE


Property FEATURES

  • Attractive Victorian Terraced House
  • Conservation Area
  • Moments from Shops, Cafés & Restaurants
  • Close Proximity to Beach
  • Whitstable Station 0.5 Miles
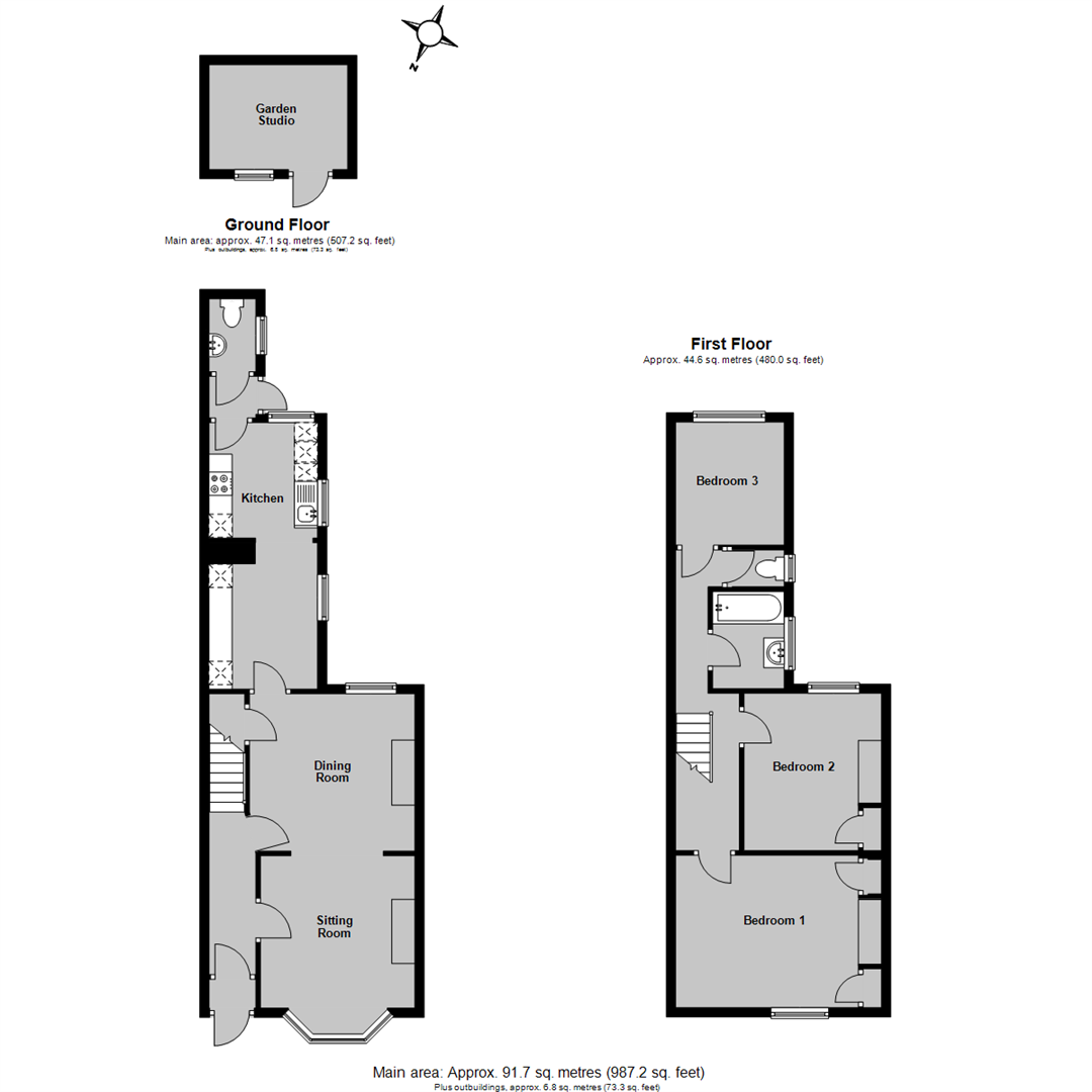
  • 2 Reception Rooms
  • 3 Bedrooms
  • Garden Studio
  • Off Street Parking

Property DESCRIPTION

An attractive Victorian terraced house in the heart of Whitstable's desirable conservation area, conveniently positioned just moments from Harbour Street's boutique shops, popular café bars and eateries, the seafront, working harbour and Whitstable station, which is half a mile distant.

The accommodation would now benefit from a degree of updating and improvement, and is arranged on the ground floor to provide an entrance porch, entrance hall, a sitting room opening to a dining room with an open fireplace, a smartly fitted kitchen, and a cloakroom.
The first floor comprises three bedrooms, a well-appointed bathroom, and a cloakroom.

The South Easterly aspect garden extends to 135ft (41m) and is predominantly laid to lawn, and incorporates a patio area and a garden studio which would suit a variety of uses. To the rear of the property, there is a driveway accessed via Regent Street, which provides an area of off-street parking.

Property LOCATION

Show Map
Powered by Apex27