Property SEARCH

1 bed Flat

£140,000

The Old Postmaster's House, East Street, Faversham

AVAILABLE


Property FEATURES

  • SHORT DISTANCE FROM THE RAILWAY STATION
  • CONVERTED FROM FAVERSHAM'S VICTORIAN POST MASTERS HOUSE
  • COMMUNAL COURTYARD GARDEN
  • IDEAL FIRST TIME BUY
  • CENTRAL LOCATION
View Brochure

Property DESCRIPTION

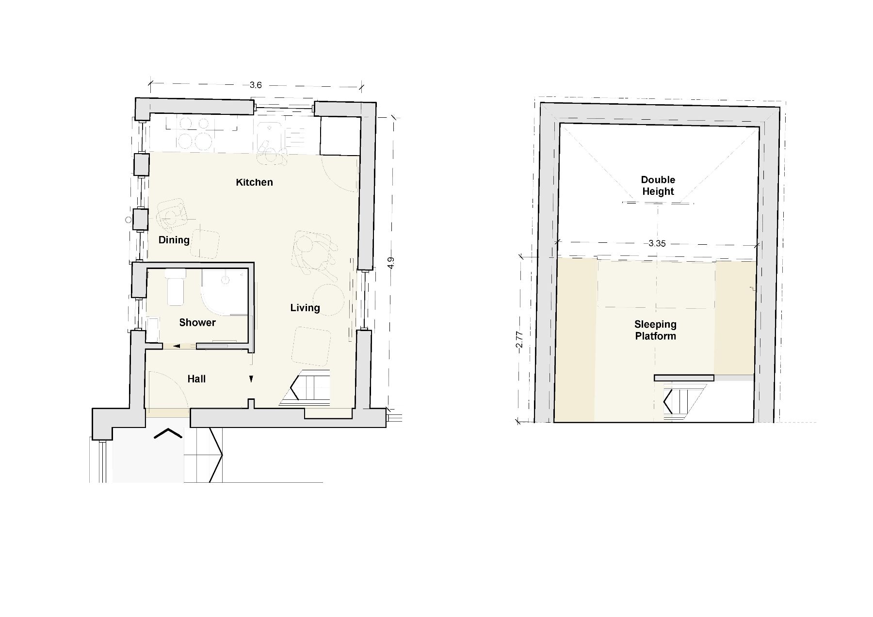
With triple aspect windows and double height space, the flat is flooded with light. The open plan kitchen/diner and living area benefits from integrated appliances, boiling water tap, solid wood work surfaces and a washing machine.
The flat features a mezzanine sleeping platform, with space for a double bed.
The shower room features a heated towel rail.

Title: New 118 Year Lease

Windows: Wooden Windows

Heating: New Electric Heating / Hot Water

Services: Mains Electric, Water and Waste

Ground Rent: £250 Ground Rent-Fixed until 2042/reviewed every 25 years

Maintenance: TBC (new lease)

Viewings strictly by appointment with Invicta Estate Agents 01795 591080

Additional Important information

The following information has been confirmed by our client and we have not verified this information-please ensure that you verify this information before proceeding with any purchase:
Our vendor has supplied the property construction information to the best of their knowledge, but they are not surveyors and we recommend that any purchaser carries out a survey to confirm this information.

Property Construction-Brick walls and tiled roof

Heating-Electric Radiators

Sewerage-Mains Waste

Electricity Supply-No other supply other than mains electric

Water Supply- No other supply other than mains water

Broadband Type-Not Known
We recommend that any prospective purchaser:
Check the installation types available at the address from Openreach: https://www.openreach.com/fibre-broadband
Check the speed and supply or coverage at the address at Ofcom checker:
https://checker.ofcom.org.uk/en-gb/broadband-coverage

Mobile Signal/coverage
Our vendor is not aware of any known issues with mobile phone signal, such as areas of restricted coverage specific to
the property.

We recommend that any prospective purchaser:
Check the Ofcom checker to ascertain coverage availability at the property:
https://checker.ofcom.org.uk/en-gb/mobile-coverage
Check with your provider as to the availability of coverage and likely speeds
Take your mobile on a viewing and test at the property

Parking
Street parking- Permit required-Annual cost. Please check with the local authority as to the availability.

Building Safety
Our vendor is not aware of any known building safety issues or any planned or required works needed to rectify any identified
defect/hazard

Restrictions
The property is in a conservation area
Restrictions on permitted development as the property is in an area with Article 4 Direction
There are restrictions in the lease and any purchaser is asked to check the lease before proceeding with a purchase.

Rights and Easements
Our vendor is not aware of any rights of ways or easements over the property

Flood/Erosion risk
Our vendor confirms that the property has not flooded in the last 5 years
Our vendor has confirmed that they are not aware of any known risk of coastal erosion affecting the property and its boundary.

Planning Permission or Proposal for Development
Our vendor is not aware of the existence of any known planning permission or proposals for development, construction or change of use affecting the property and its immediate locality.

Coalfield or Mining Area
Our vendor is not aware of coalfield below the property and has confirmed they are not aware of any other mining activity that could affect the property.




Council Tax Band: A (Swale Borough Council)
Tenure: Leasehold (118 years)
Ground Rent: £250 per year (reviewed every 25 years)
Service Charge: £200 per year (reviewed every 1 years)
A new lease will be created on completion.

Property LOCATION

Show Map
Powered by Apex27