Property SEARCH

3 bed Terraced

£290,000

Doddington Road, Twydall, Gillingham, ME8

AVAILABLE


Property FEATURES

  • No Onward Chain
  • Extended Terraced Family Home
  • Three Double Bedrooms
  • Kitchen/Breakfast Room
  • Two Receptions
  • Well Located for Good Schools
  • Close To Amenities & Boasts Great Transport Links
  • Downstairs W/C & Utility Area
  • Rear Garden Measuring Approx 49ft x 26ft

Property DESCRIPTION

**Guide Price £290,000-£310,000** This spacious and well-presented extended family home offers excellent living accommodation, starting with a large entrance hallway complete with built-in storage. The modern kitchen/breakfast room is ideal for everyday family living and is complemented by a handy utility area and convenient downstairs W/C. The generous lounge provides a comfortable space for relaxation, while the separate dining area features skylights, flooding the room with natural light and creating a bright and welcoming atmosphere. Upstairs, the property boasts three generously sized double bedrooms and a well-appointed family bathroom. Externally, the rear garden is of a lovely size and includes a patio, decking area, and a lawn, perfect for outdoor entertaining and family enjoyment. The front garden is low maintenance with attractive shingle, adding to the property's curb appeal. The property is well served by a wide range of local amenities, including shops, good schools, and parks, and benefits from excellent transport links, making it ideal for commuters and families alike. It's rare that such a fantastic opportunity like this presents itself to the market, so call the Greyfox sales team in Rainham to arrange your viewing now!

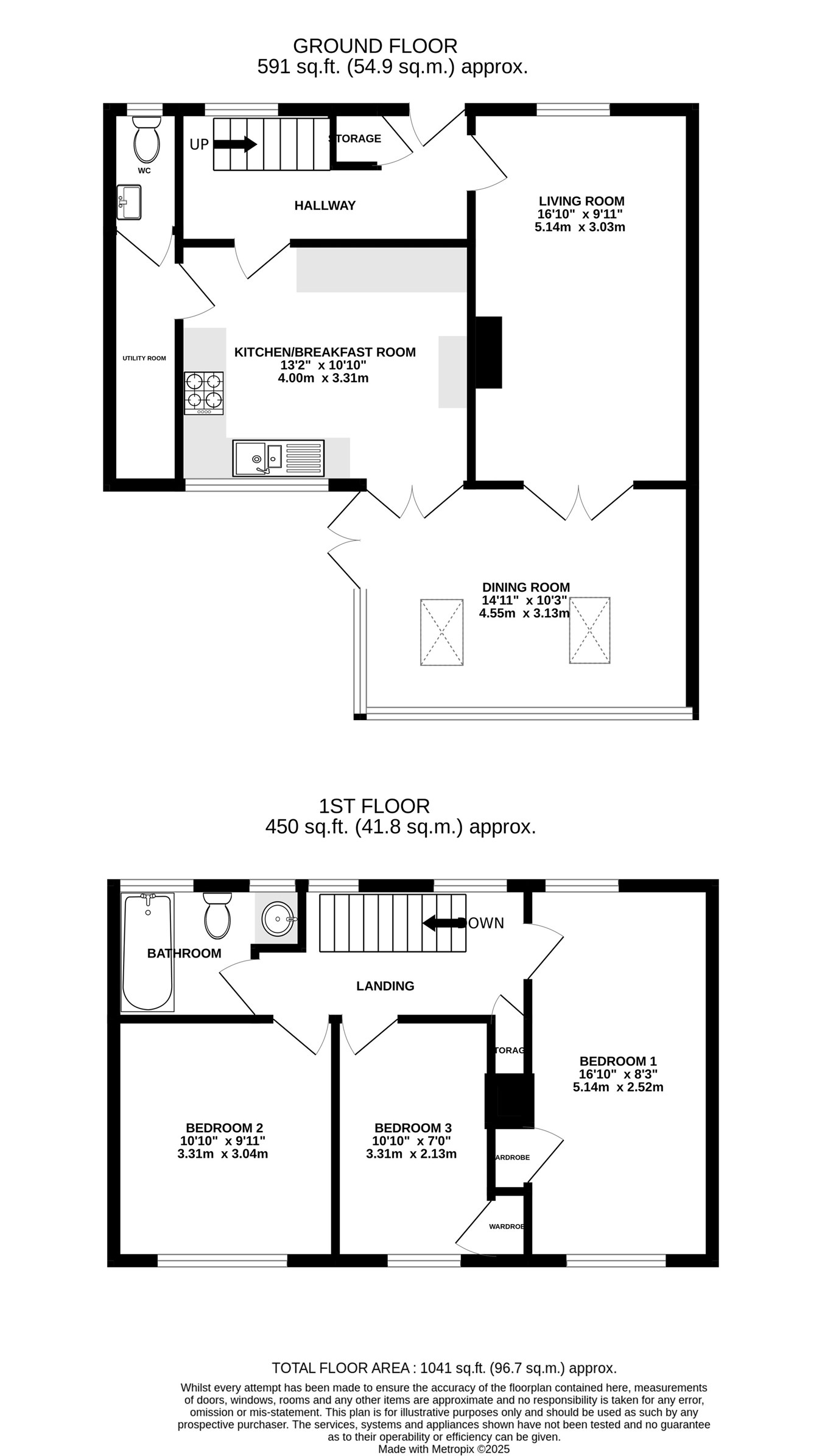
Ground Floor


Living Room
16' 10" x 9' 11" (5.13m x 3.02m)

Dining Room
14' 11" x 10' 3" (4.55m x 3.12m)

Kitchen/ Breakfast Room
13' 2" x 10' 10" (4.01m x 3.30m)

Utility Room


WC


First Floor


Bedroom 1
16' 10" x 8' 3" (5.13m x 2.51m)

Bedroom 2
10' 10" x 9' 11" (3.30m x 3.02m)

Bathroom


Bedroom 3
10' 10" x 7' 0" (3.30m x 2.13m)

Property LOCATION

Show Map
Powered by Apex27