Property SEARCH

3 bed Detached House

£765,000

Rural Faversham, East Kent

FOR SALE


Property FEATURES

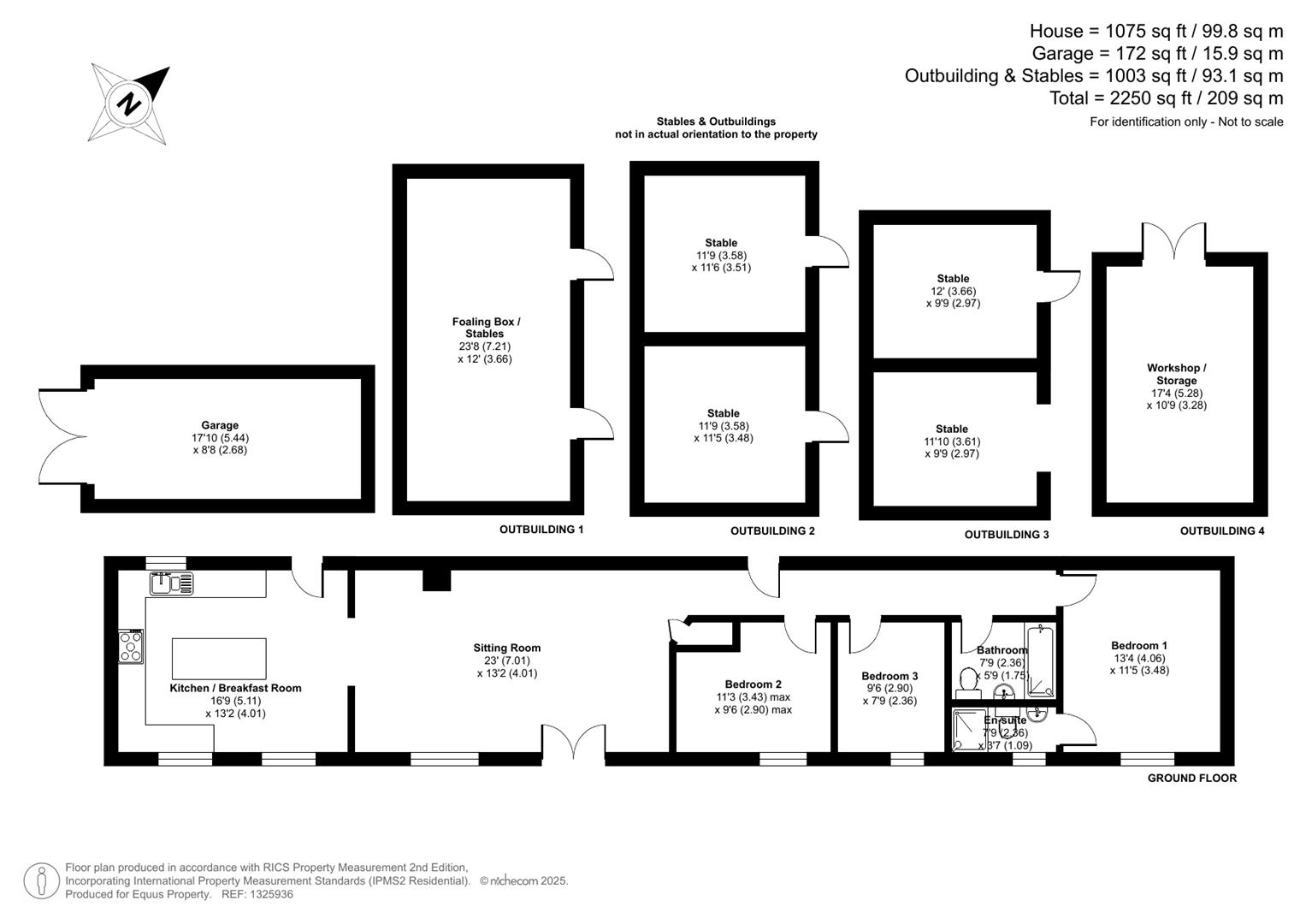
  • Single Storey Converted Character Barn Conversion
  • Set in 3 acres (*TBV) of land
  • Divided into 4 Equi - fenced paddocks
  • Foaling Box,3 Stables,Hay Storage,Garage and furth
  • Potential for Riding Arena (subject to relevant pl
  • Modern Open Plan Living - Kitchen/Sitting Room/Din
  • 3 Bedrooms/ 2 Bathrooms
  • Quiet Rural Location
  • In an Area of Outstanding Natural Beauty
  • Accessible to A20/M20 and A2/M2 - Ashford/Canterbu

Property DESCRIPTION

EQUESTRIAN & COUNTRY - Nestled in the tranquil Kent Downs countryside (AONB) in 3 acres (*TBV) with stabling and outbuildings, a charming detached single storey barn conversion within a small farmstead of similarly converted properties.

Current equestrian facilities include: three 12ft x 12ft loose boxes, 24 ft x 12ft foaling box, hay storage (CCTV & Wi-Fi Fitted). The adjoining land is divided into 4 paddocks with equi fencing (part electric) and a vehicular track leads to separate gated access onto the lane. There is room within the plot to add a Riding Arena (subj. to perm.) To the front the property is approached form a formal brick pillared entrance onto a shared driveway with ample parking areas by the house and the drive and adjacent single garage with first floor mezzanine.

This stunning Barn is of mixed brick, flint and weather boarded elevations and boasts a glorious vaulted, beamed interior enhanced by all the facets of modern family living. Mainly open plan in layout, there is a modern kitchen with breakfast bar plus integral appliances, opening into a sitting room/dining room with woodburning stove with oak doors and heated zone oak flooring plus 3 double bedrooms and 2 bathrooms.

Outside to the front there is a lawned garden and parking areas, with side access leading to a large rear terrace and further large area of lawn with pedestrian gate to the stables and paddocks. The whole presents a great opportunity to enjoy a rural lifestyle, yet not be isolated, with miles of surrounding bridleways and country walks to enjoy as well as good access to shopping and amenities provided at the town of Faversham and the Cathedral City of Canterbury.

Property LOCATION

Show Map
Powered by Apex27