Property SEARCH

3 bed Terraced

£230,000

Saunders Street, Gillingham

FOR SALE


Property FEATURES

  • 3 Bedroom House
  • No Onward Chain
  • En-Suite Shower Room
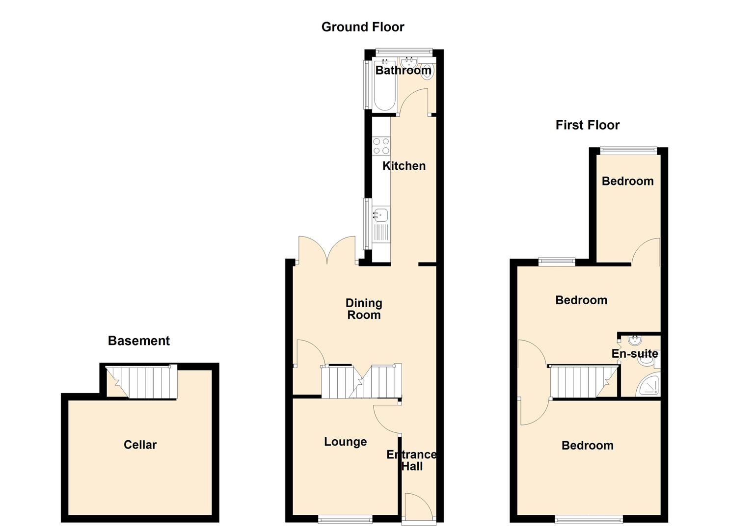
  • Useful Cellar Room
  • Near to Town Centre
  • Enclosed Rear Garden
  • Ideal First-Time Buy
  • Call to Book Viewing

Property DESCRIPTION

PRICE GUIDE £230,000 to £250,000

3 Bedroom House near to Gillingham Town Centre and Train Station.

This well-presented 3 Bedroom property is ideal for First-Time Buyers or Investors, with No Onward Chain. Conveniently located within easy reach of Gillingham Town Centre, Train Station, Transport Links, Schools, as well as plenty of Local Amenities.

The ground floor includes a Comfortable Lounge, Separate Dining Area, Fitted Kitchen, and Family Bathroom. The property also benefits from a Useful Cellar - Ideal for storage or potential development.

Upstairs, you'll find 3 bedrooms, with the third bedroom accessed via the second - making it ideal as a Nursery, Dressing Room or Home Office. The spacious master bedroom has its own En-Suite Shower Room, offering additional comfort and privacy.

Outside, there is an Enclosed Rear Garden - perfect for relaxing and entertaining.

A great opportunity to step onto the property ladder with a home full of potential in a very convenient location.

Property LOCATION

Show Map
Powered by Apex27