Property SEARCH

4 bed Terraced

£529,950

Swalecliffe, Herne Bay

FOR SALE


Property FEATURES

  • Sea-facing Former Coastguard Cottage
  • Panoramic Sea Views
  • Conveniently Positioned for Access to Herne Bay, W
  • Extended & Beautifully Presented in Smart Contempo
  • Open-Plan Living Accommodation
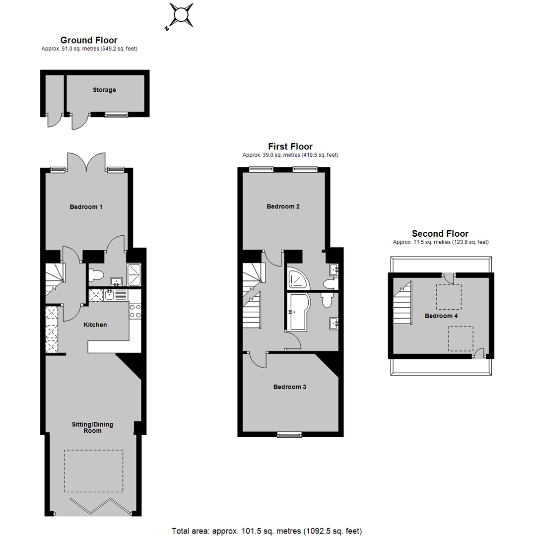
  • 4 Double Bedrooms
  • 2 Bathrooms
  • South Easterly Rear Courtyard
  • Off Street Parking
  • No Onward Chain

Property DESCRIPTION

A rare opportunity to acquire a sea-facing former coastguard cottage. The property is ideally situated on the western side of Herne Bay, from where it commands panoramic and far-reaching views of the sea and within close proximity of bus routes, local shops, medical centre and amenities. Chestfield & Swalecliffe train station is within walking distance (1.1 miles). A wider range of amenities are available at nearby Tankerton (1.8 miles) and Whitstable (2.8 miles).

The cottage has been significantly extended and comprehensively remodelled, and now provides generously proportioned accommodation presented in smart contemporary style throughout. The property is arranged to provide a sitting/dining room overlooking the sea with bi-folding doors leading to the front garden, a contemporary kitchen, and a bedroom with doors leading to the rear garden. To the first floor, there a two double bedrooms and two smartly fitted bathrooms. In addition to this, there is a further bedroom to the second floor.

To the front of the house is a delightful garden which commands views of the sea and promenade, and an area of off street parking. The South Easterly rear courtyard provides a decked seating area and an outbuilding which would suit a variety of uses. No onward chain.

Property LOCATION

Show Map
Powered by Apex27