Property SEARCH

4 bed Detached Bungalow

£675,000

Robin Hood Lane, Blue Bell Hill, Chatham, ME5

AVAILABLE


Property FEATURES

  • Outstanding Detached Bungalow
  • Four Bedrooms
  • Large Open Plan Kitchen/Breakfast Room
  • Lounge/Dining Room and Family Room
  • Ensuite, Bathroom & Shower room
  • Separate WC
  • Conservatory
  • Gated Driveway for Parking for Multiple Cars
  • Superb Rear Garden

Property DESCRIPTION

We are delighted to bring to the market this four bedroom detached bungalow located in the sought after residential area of Blue Bell Hill.

On approaching this wonderful home you will automatically notice there is ample parking spaces for multiple cars for all the family and visitors. The accommodation is versatile for the growing family or for a multi generational family.

Upon entering, you are welcomed to the entrance hallway which leads through to the good size lounge/diner with a feature brick style fire and wood burner which is a lovely space to chill and unwind. Continuing through you are welcomed to the well appointed kitchen/breakfast room which is a great space for entertaining friends and family with French doors leading out to the terrace which is a tranquil space to relax and unwind. The kitchen offers a range of fitted wall and base units with ample worksurfaces and integrated appliances. There is another reception room via bi fold doors which would be ideal as a family room or as an office.

Continuing through you have four bedrooms, three of which are double, the premium being offered with an ensuite bathroom. Also benefits from a modern fitted shower room and WC. There is also a great size conservatory which overlooks the lovely garden which again is an extension of this lovely bungalow and is great for entertaining with family and friends in the summer and winter months.

The generous rear garden provides a peaceful haven and the current owner has put a lot of time and care into, offering a well established garden with a variety of trees and shrubs, mainly laid to lawn with a raised decking area. Also offers a vegetable plot with sheds and a green house to remain.

Blue Bell Hill is a charming and well-connected village situated between Maidstone and Rochester, offering a perfect blend of Countryside, tranquility and commuter convenience. The area benefits from excellent transport links including easy access to the M2 & M20 motorways, making it easy for those travelling to London or the coast.

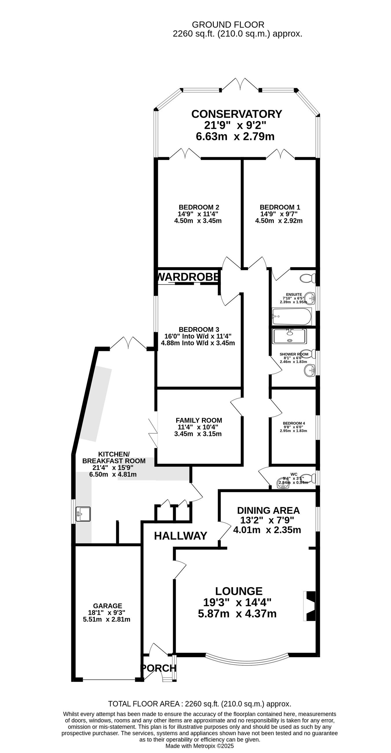
Ground Floor


Porch


Hallway


Lounge
19' 3" x 14' 4" (5.87m x 4.37m)

Dining Area
13' 2" x 7' 9" (4.01m x 2.36m)

Kitchen/Breakfast Room
21' 4" x 15' 9" (6.50m x 4.80m)

Family Room
11' 4" x 10' 4" (3.45m x 3.15m)

Bedroom 1
14' 9" x 9' 7" (4.50m x 2.92m)

Ensuite
7' 9" x 6' 0" (2.36m x 1.83m)

Shower Room
8' 1" x 6' 0" (2.46m x 1.83m)

Bedroom 2
14' 9" x 11' 4" (4.50m x 3.45m)

Bedroom 3
16' 0" x 11' 4" (4.88m x 3.45m)

Bedroom 4
9' 8" x 6' 0" (2.95m x 1.83m)

WC
9' 4" x 3' 0" (2.84m x 0.91m)

Conservatory
22' 3" x 9' 2" (6.78m x 2.79m)

External


Garage

Property LOCATION

Show Map
Powered by Apex27