Property SEARCH

3 bed Detached House

£2,000

Cranbrook, Sissinghurst, Kent

AVAILABLE TO LET

Property FEATURES

  • Beautifully appointed
  • 4.4 miles from Staplehurst MLS
  • Cranbrook school catchment area
  • EV charging point
  • Economic to run EPC A
  • Solar panels

Property DESCRIPTION

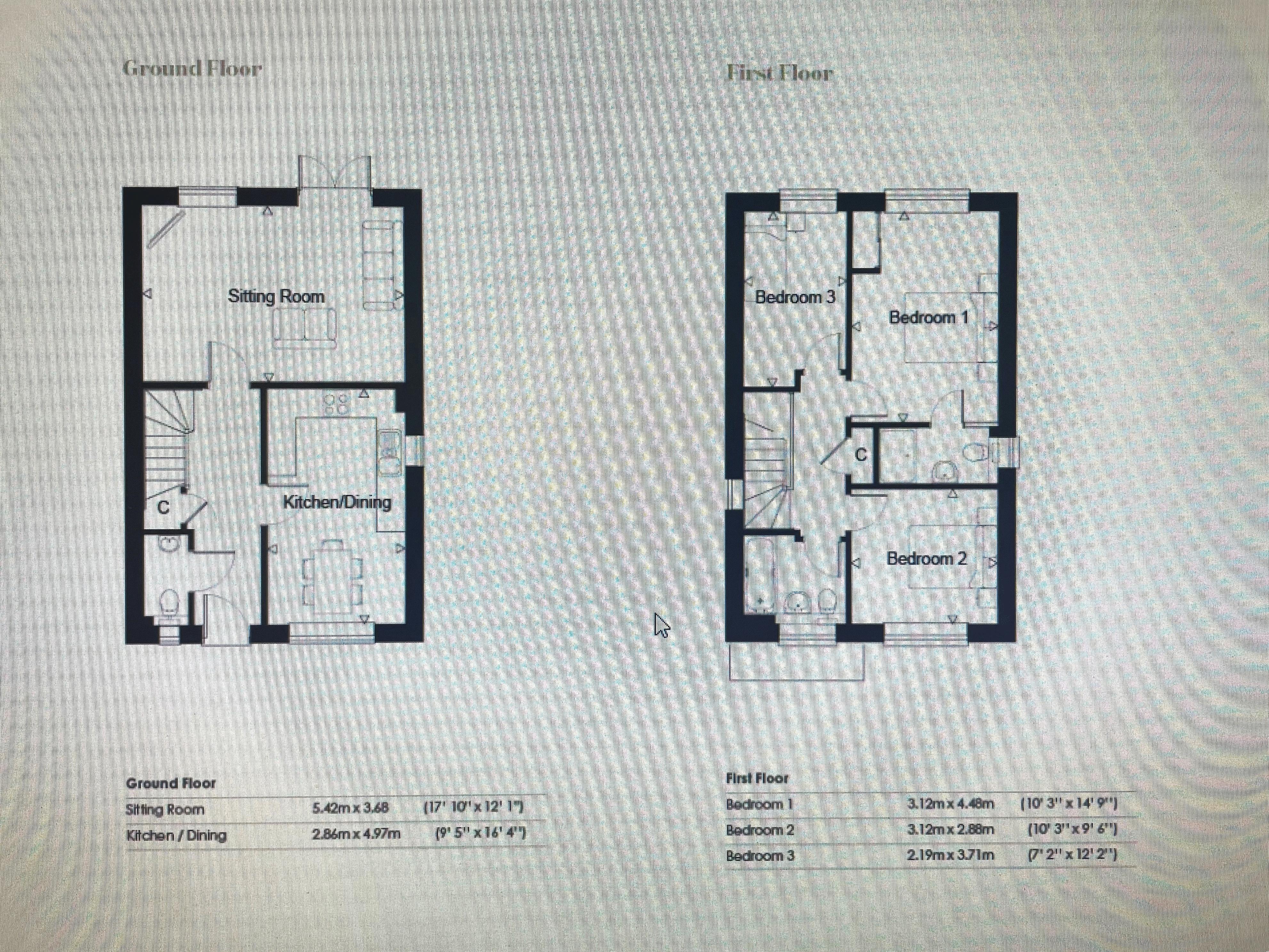
A superb, newly built, detached three bedroom family home set in the heart of the village and withing the Cranbrook school catchment area. Beautifully appointed with private fenced garden and off road parking. EPC A. Council Tax Band F.
Entrance Hall; Cloakroom; Sitting room 5.42 x 3.57; Kitchen/Dining room 5.07 x 2.96; Bedroom one with en suite shower room 4.48 x 3.12; Bed two 3.12 x 2.88; Bed three 2.85 x 2.19
Family bathroom. Private fenced garden with Indian stone patio. Off road parking.
EPC A. Council Tax Band F.

Property LOCATION

Show Map
Powered by Apex27