Property SEARCH

4 bed Detached House

£2,250,000

North Foreland Avenue, Broadstairs, Kent

AVAILABLE


Property FEATURES

  • Immaculately presented and contemporary detached home
  • Breathtaking elevated panoramic sea view to the front
  • Found on the prestigious & private North Foreland Estate
  • Double garage and vast electric gated resin driveway
  • Beautiful landscaped rear garden with heated pool, outdoor kitchen and entertaining areas
  • Vast open plan living space with separate lounge and second floor sitting room
  • Above-average EPC energy efficiency rating B (84)
View Brochure

Property DESCRIPTION

No expense has been spared in the construction of this magnificent North Foreland Estate residence. Built six years ago by a property developer for his own use, it provides the ultimate in contemporary living and includes high end features such as an aluminium box construction, three phase electrical supply, walnut doors, woodwork and staircases, Villeroy and Boch sanitaryware and Siemens kitchen appliances. A high electric gate opens onto a large resin driveway and a double garage with a 22kw electric car charger while steps lead to vast glass pivot front door with fingerprint access. Swathes of glass provide a light atmosphere which is immediately apparent as you see the breath-taking open plan living accommodation with a plethora of bi-fold doors including a corner opening, a double height atrium and a family area. The amazing kitchen/breakfast area includes a vast island/breakfast bar with a curved Corian worktop, an induction hob, an attached cantilevered circular dining table and a range of bespoke cupboards housing numerous appliances. There is a lounge with sea views, concealed LED lighting and a raised fireplace and access to a boot room, media control cupboard, a large boiler room and a cloakroom and an external door. A floating staircase leads to the first floor landing overlooking the ground floor seating area and access to two ensuite double bedrooms. One has a Juliette balcony and the other has French doors to the front balcony with sea views while the magnificent main bedroom includes a stunning bathroom, an impressive dressing room and access to the front balcony with far-reaching views. The second floor includes the beautiful Bocci style chandelier, a dual aspect sitting room with patio doors to the wraparound roof terrace and a double en suite guest room with patio doors to the terrace that includes aluminium cladding and cedar panelling. A vast porcelain tiled terrace surrounds the saltwater swimming pool that has a safety cover while an artificial grass area with a bio ethanol fireplace is ideal for outdoor entertaining. Steps lead to the large upper lawn, shrub beds and secure fencing. What the Owner says:
We were delighted to have the opportunity to create this unique and contemporary property to the highest standard and it has been a wonderful family home. We thought about every detail, even ensuring the property was actually on mains drainage, unlike many of the other properties on the estate. However we are starting on a new project and hope that new owners will appreciate everything this amazing residence has to offer.
It is a quiet, peaceful and safe area and not far to Broadstairs town centre and the station. As the property forms part of the North Foreland Estate, we are key holders to its private beach and not far from the North Foreland golf course. There are also squash, tennis, cricket, bowls and rugby clubs and the town includes individual shops, bars and first class restaurants as well as a cinema and annual events such as Folk Week, the Dickens Festival and the Food Fair. The station can whisk you to London on the high speed train in under an hour and a half and we are not too far from Dover or the Channel Tunnel, while both Broadstairs and nearby Ramsgate include very good private and grammar schools as well as primary and junior schools rated Outstanding by Ofsted.
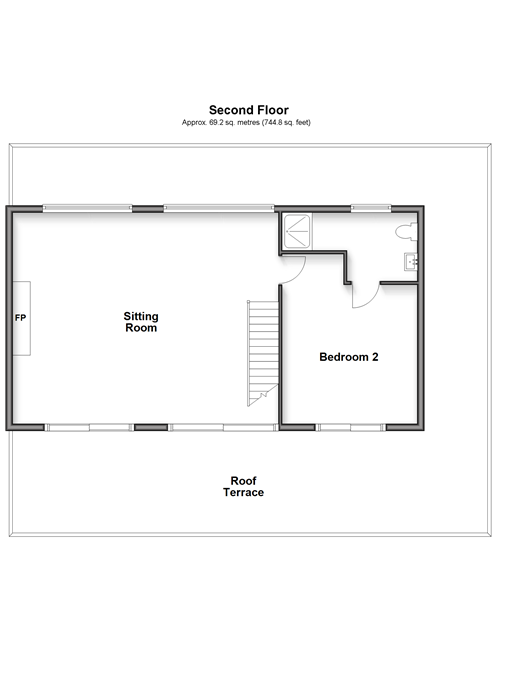
Room sizes:Double Garage: 18'6 x 18'1 (5.64m x 5.52m)Reception Hall: 18'6 x 10'10 (5.64m x 3.30m)Kitchen/Breakfast Area: 21'8 x 20'3 (6.61m x 6.18m)Utility Room: 13'1 x 12'9 (3.99m x 3.89m)Storage RoomDining Area: 11'8 x 11'2 (3.56m x 3.41m)Family Area: 13'2 x 13'1 (4.02m x 3.99m)Lounge: 16'1 x 14'1 (4.91m x 4.30m)Boot RoomCloakroomFIRST FLOORGalleried LandingBedroom 3: 14'0 x 11'8 (4.27m x 3.56m)En Suite Shower RoomBedroom 4: 14'0 x 10'7 (4.27m x 3.23m)En Suite Shower RoomMain Bedroom: 18'4 x 15'6 (5.59m x 4.73m)En Suite Bath/Shower Room: 14'1 x 8'9 (4.30m x 2.67m)Dressing Room: 14'3 x 8'8 (4.35m x 2.64m)BalconySECOND FLOORSitting Room: 25'0 (7.63m) narrowing to 18'5 (5.62m) x 19'7 (5.97m)Roof TerraceBedroom 2: 15'7 (4.75m) narrowing to 12'8 (3.86m) x 12'6 (3.81m)OUTSIDERear GardenHeated Outdoor Swimming PoolElectric Gated Driveway 
The information provided about this property does not constitute or form part of an offer or contract, nor may it be regarded as representations. All interested parties must verify accuracy and your solicitor must verify tenure/lease information, fixtures & fittings and, where the property has been extended/converted, planning/building regulation consents. All dimensions are approximate and quoted for guidance only as are floor plans which are not to scale and their accuracy cannot be confirmed. Reference to appliances and/or services does not imply that they are necessarily in working order or fit for the purpose.
 
Legal advice should be taken to verify fixtures/fittings, planning, alterations and/or lease details. Appliances & services are untested, dimensions are approximate and floor plans are not to scale.
 
We are pleased to offer our customers a range of additional services to help them with moving home. None of these services are obligatory and you are free to use service providers of your choice. Current regulations require all estate agents to inform their customers of the fees they earn for recommending third party services. If you choose to use a service provider recommended by Fine & Country, details of all referral fees can be found at the link below. If you decide to use any of our services, please be assured that this will not increase the fees you pay to our service providers, which remain as quoted directly to you.

Council Tax band: G

Tenure: Freehold

Property LOCATION

Show Map
Powered by Apex27