Property SEARCH

2 bed Bungalow

£390,000

Lower Woodlands Road, Gillingham, ME7

AVAILABLE


Property FEATURES

  • Two Bedroom Detached Bungalow
  • Excellent Condition & Ready to Move In
  • Conservatory Overlooking The Rear Garden
  • Driveway For Multiple Vehicles
  • Potential To Extend (STRPP)
  • Good Location For Transport Links, Bus Route & Amenities
  • Modern Family Shower Room
  • Established Rear Garden Measuring approx. 62ft x 28ft

Property DESCRIPTION

Nestled in a sought-after location with excellent access to local amenities and transport links, this spacious detached bungalow offers comfortable, versatile living with a host of appealing features. The property boasts two generously sized double bedrooms, each with attractive bay windows that flood the rooms with natural light. A bright and airy lounge provides the perfect space to relax, with patio doors opening directly onto the garden, seamlessly blending indoor and outdoor living and boasts underfloor heating. The well-equipped kitchen is both practical and stylish and includes an integrated fridge/freezer, dishwasher and washing machine, while the sunny conservatory at the rear of the home enjoys lovely views over the garden—ideal for enjoying a morning coffee or a peaceful afternoon. The rear garden is a real highlight: generously sized and thoughtfully arranged with multiple seating areas, perfect for entertaining or unwinding and with handy sheds for storage. The property boasts fifteen owned solar panels that generate income, so you're making money whenever the sun shines and with an A-rated EPC, this is a highly energy-efficient and cost-effective purchase. With a bus stop just moments away and all essentials within easy reach, this delightful bungalow is not to be missed, so call the Greyfox sales team in Rainham to arrange your viewing now!

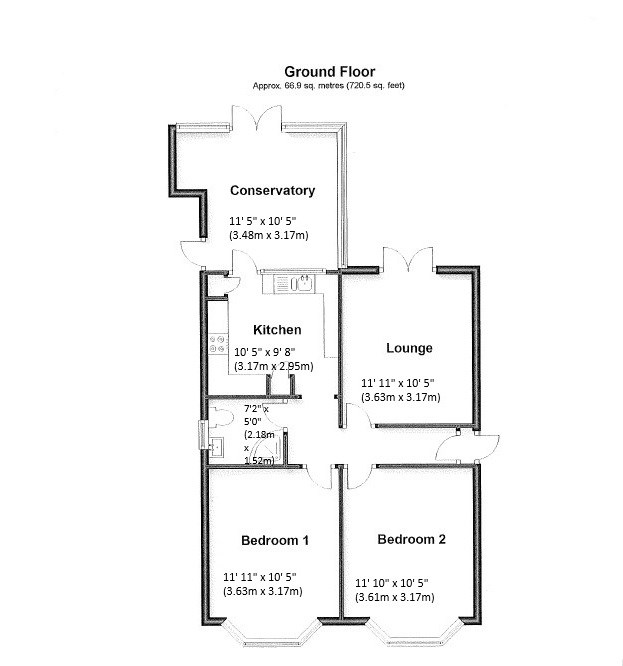
Storm Porch
2' 8" x 10' 3" (0.81m x 3.12m)

Lounge
11' 11" x 10' 5" (3.63m x 3.17m)

Kitchen
10' 5" x 9' 8" (3.17m x 2.95m)

Conservatory
11' 5" x 10' 5" (3.48m x 3.17m)

Bedroom 1
11' 11" x 10' 5" (3.63m x 3.17m)

Bedroom 2
11' 10" x 10' 5" (3.61m x 3.17m)

Bathroom
7' 2" x 5' 0" (2.18m x 1.52m)

Property LOCATION

Show Map
Powered by Apex27