Property SEARCH

4 bed Terraced

£650,000

Frognal Farm Barns, Teynham

FOR SALE


Property FEATURES

  • Prestigious New Development
  • Magnificent Grade II Listed 16th Century Barn
  • Desirable Rural Location
  • Generous Reception Space
  • Handmade Kitchen
  • 4 Double Bedrooms
  • 3 Bathrooms
  • Private Garden
  • Car Barn with Storage
  • Off Street Parking & EV Charging Point

Property DESCRIPTION

An exceptional new family home created from the conversion and restoration of a magnificent Grade II listed 16th Century barn, in a desirable rural location on the outskirts of Teynham from where it commands fine views over adjoining farmland.

Plot 2 Frognal Farm Barns is one of four substantial houses, each providing light-filled, open-plan living spaces finished to an exceptional standard throughout to compliment the heritage of the building. Of particular note are the vaulted ceilings to the first floor, which display the fine craftsmanship of the roof structure and are finished in rough-sawn sarking boards.

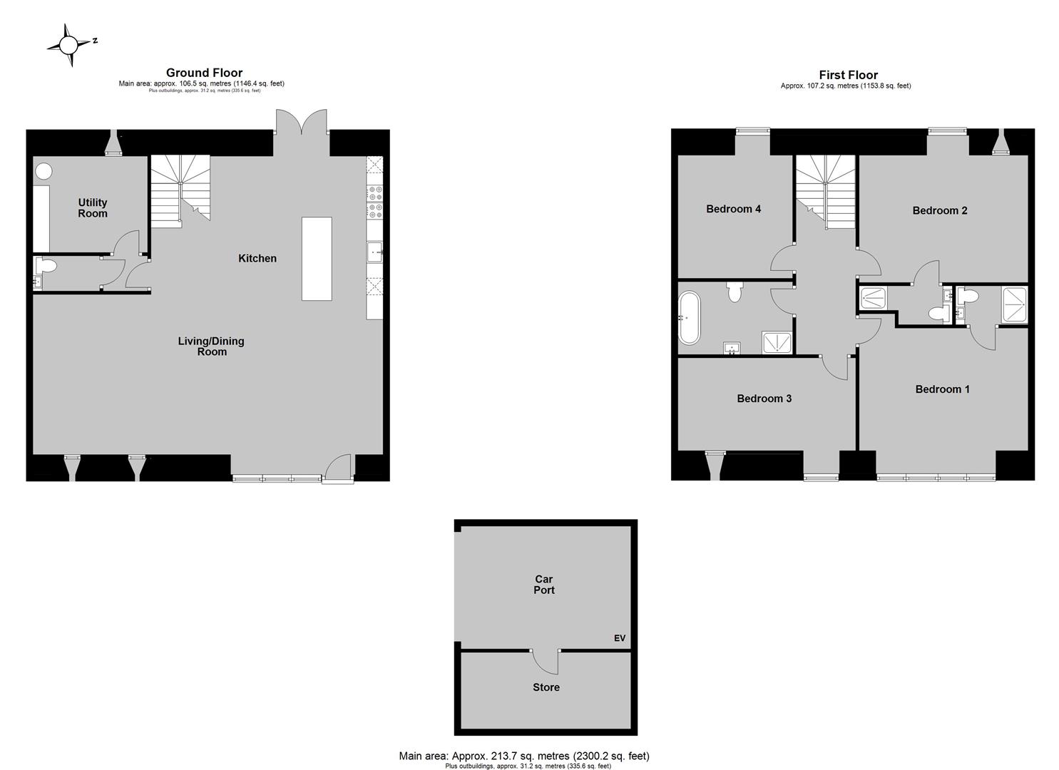
The extensive accommodation extends to 2300 sq ft (213 sq m) and is arranged on the ground floor to provide a generous living/dining room, a handmade kitchen, separate utility room and a cloakroom. The first floor provides four double bedrooms and three bathrooms including two en-suite shower rooms.

Outside, the gardens have been thoughtfully landscaped with natural stone terraces which overlook the adjoining countryside, and within the courtyard to the front of the property, there is a private parking area for several vehicles. A timber open barn provides a further parking space and a charging point for electric vehicles, and additional storage.

Available to view by appointment with Christopher Hodgson Estate Agents. Please contact us to register your interest and to request a brochure.

Property LOCATION

Show Map
Powered by Apex27