Property SEARCH

1 bed Apartment

£259,950

Pier Avenue, Tankerton, Whitstable

FOR SALE


Property FEATURES

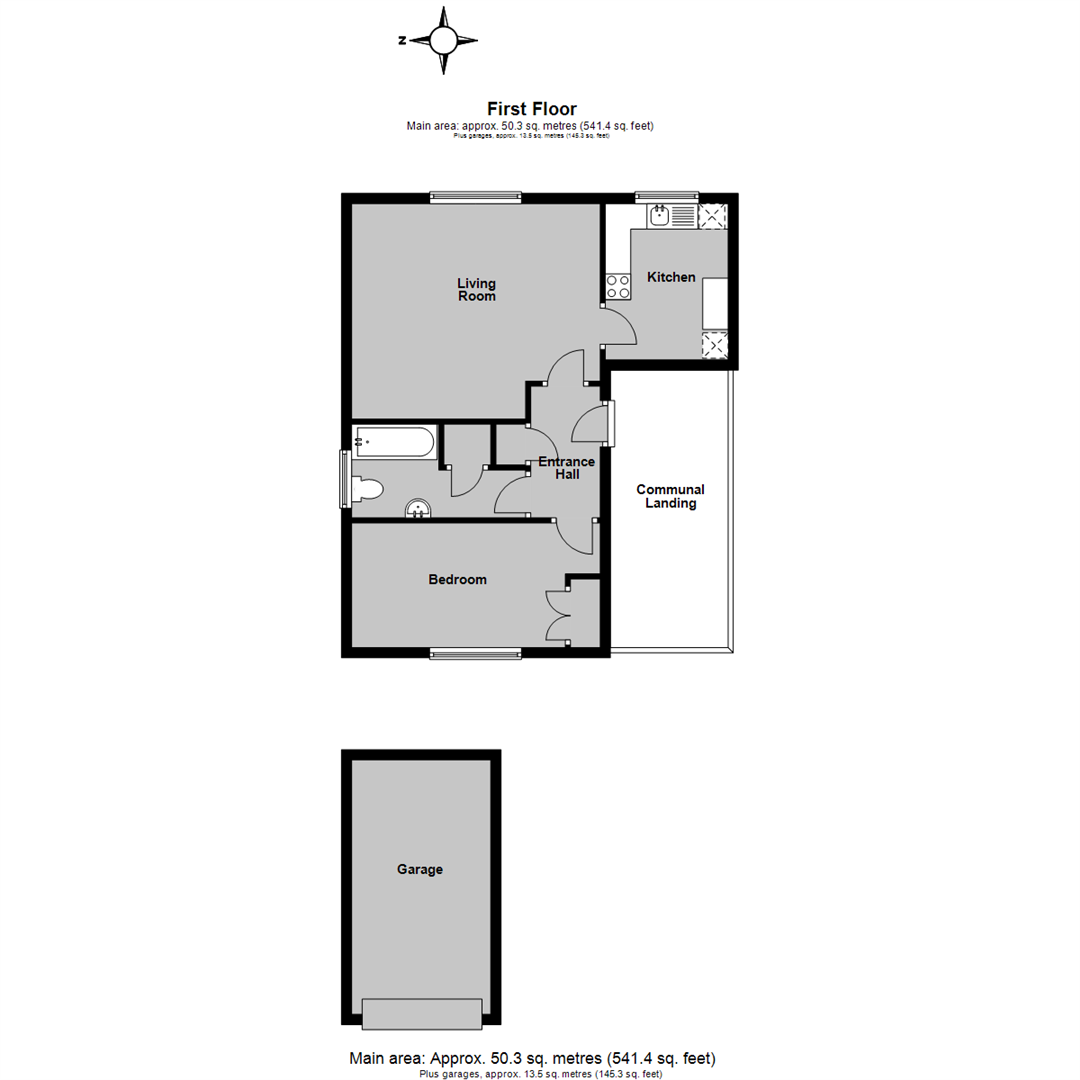
  • Spacious First Floor Apartment
  • Sea Views
  • Moments from Tankerton Slopes & Seafront
  • Desirable Development
  • Close to Shops, Restaurants & Amenities
  • Whitstable Mainline Station 1 mile
  • Smartly Presented Throughout
  • Garage providing Off Street Parking
  • No Onward Chain

Property DESCRIPTION

A spacious purpose built first floor apartment, forming part of a desirable development situated in a convenient central Tankerton location, moments from the seafront (100 metres) and within close proximity of shops and amenities on Tankerton Road, bus routes and one mile from Whitstable mainline station.

The smartly presented and comfortably proportioned accommodation is arranged to provide an entrance hall, living room, kitchen, a bedroom and a bathroom.

The apartment benefits from a garage located to the rear of the building, accessed via Pier Avenue.
The property is being sold with the benefit of a new 99 year lease. No onward chain.

Property LOCATION

Show Map
Powered by Apex27