Property SEARCH

2 bed Ground Floor Flat

£477,950

High Street, Staplehurst, Kent

AVAILABLE


Property FEATURES

  • Exclusively for the over 60's
  • Owners' Lounge with coffee bar
  • Guest Suite for friends and family
  • Landscaped gardens
  • Walk-in wardrobe in main bedroom
  • Fitted kitchen with built in oven, hob and fridge/freezer
  • 24 hour call centre support system, Energy efficient and economical heating
  • Secure camera entry system, Lodge Manager
View Brochure

Property DESCRIPTION

The developments have been carefully designed to make life easier, leaving you free to enjoy your retirement. All apartments are completely self-contained with their own front door, providing you with privacy and peace and quiet when you want it. There is a choice of one and two bedroom apartments, and they may all vary slightly when it comes to dimensions and position of rooms. Kitchens are tiled with colour-coordinated worktops and come with integrated appliances. Shower rooms feature low-level shower trays and easy turn taps, while kitchens include a waist height oven and hob as standard. You'll find a walk-in wardrobe in the bedroom and open space in the living room. Beautiflly landscaped grounds are all maintained for you and are ideal for enjoying a cup of tea with the neighbours, or your family and friends. What's more, there is a Lodge Manager on hand to ensure everything is running smoothly. More information regarding the grand opening on the link below: https://marketing.crl.co.uk/churchillretirementlivinglz/lz.aspx?p1=V2DDA1MVMwNjUxODMyODpBODRCOTcwQjFGQ0U4M0Q2RTBDNTcwQTgxMzdEMEQ1RA%3d%3d-&p=0  
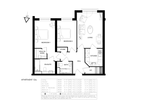
Please refer to the footnote regarding the services and appliances. Room sizes:Kitchen: 8'3 x 8'0 (2.52m x 2.44m)Living Room: 16'4 x 11'9 (4.98m x 3.58m)Bathroom: 6'11 x 5'6 (2.11m x 1.68m)En-Suite: 9'5 x 6'9 (2.87m x 2.06m)Bedroom one: 12'8 x 9'5 (3.86m x 2.87m)Bedroom two: 14'4 x 9'1 (4.37m x 2.77m) 
The information provided about this property does not constitute or form part of an offer or contract, nor may it be regarded as representations. All interested parties must verify accuracy and your solicitor must verify tenure/lease information, fixtures & fittings and, where the property has been extended/converted, planning/building regulation consents. All dimensions are approximate and quoted for guidance only as are floor plans which are not to scale and their accuracy cannot be confirmed. Reference to appliances and/or services does not imply that they are necessarily in working order or fit for the purpose.
 
Legal advice should be taken to verify fixtures/fittings, planning, alterations and/or lease details. Appliances & services are untested, dimensions are approximate and floor plans are not to scale.
 
We are pleased to offer our customers a range of additional services to help them with moving home. None of these services are obligatory and you are free to use service providers of your choice. Current regulations require all estate agents to inform their customers of the fees they earn for recommending third party services. If you choose to use a service provider recommended by Wards, details of all referral fees can be found at the link below. If you decide to use any of our services, please be assured that this will not increase the fees you pay to our service providers, which remain as quoted directly to you.

Tenure: Leasehold

Years remaining on lease: 98

Property LOCATION

Show Map
Powered by Apex27