Property SEARCH

2 bed Cottage

£521,950

High Street, Staplehurst, Kent

AVAILABLE


Property FEATURES

  • Exclusively for the over 60's
  • Access to social events with exclusive Lodge Club Membership
  • Private allocated parking
  • Landscaped garden
  • Kitchen/dining area
  • Walk-in wardrobe in main bedroom
  • Energy efficient and economical heating
  • En-suite and shower room
  • Lodge Manager
  • Secure camera entry system
View Brochure

Property DESCRIPTION

Our exclusive cottages are fully self-contained, each featuring a private garden and designated parking. You can still enjoy the social benefits of the Lodge through the Lodge club membership. More information regarding the grand opening on the link below: https://url.uk.m.mimecastprotect.com/s/rBP3CKYopsDJPD7tGumf5cLJh?domain=marketing.crl.co.uk  
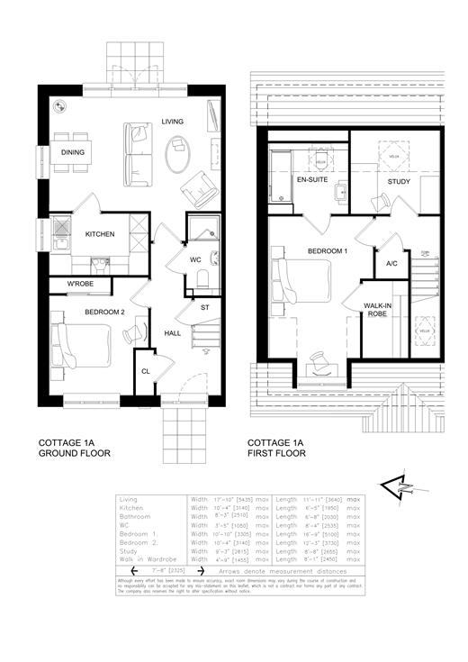
Please refer to the footnote regarding the services and appliances. Room sizes:Kitchen: 10'4 x 6'5 (3.15m x 1.96m)Living Room/Dining: 17'10 x 11'11 (5.44m x 3.63m)Bedroom 2: 12'3 x 10'4 (3.74m x 3.15m)Shower Room: 8'4 x 3'5 (2.54m x 1.04m)LandingBedroom 1: 16'9 x 10'11 (5.11m x 3.33m)En-Suite Bathroom: 8'4 x 6'8 (2.54m x 2.03m)Study: 9'3 x 8'9 (2.82m x 2.67m) 
The information provided about this property does not constitute or form part of an offer or contract, nor may it be regarded as representations. All interested parties must verify accuracy and your solicitor must verify tenure/lease information, fixtures & fittings and, where the property has been extended/converted, planning/building regulation consents. All dimensions are approximate and quoted for guidance only as are floor plans which are not to scale and their accuracy cannot be confirmed. Reference to appliances and/or services does not imply that they are necessarily in working order or fit for the purpose.
 
Legal advice should be taken to verify fixtures/fittings, planning, alterations and/or lease details. Appliances & services are untested, dimensions are approximate and floor plans are not to scale.
 
We are pleased to offer our customers a range of additional services to help them with moving home. None of these services are obligatory and you are free to use service providers of your choice. Current regulations require all estate agents to inform their customers of the fees they earn for recommending third party services. If you choose to use a service provider recommended by Wards, details of all referral fees can be found at the link below. If you decide to use any of our services, please be assured that this will not increase the fees you pay to our service providers, which remain as quoted directly to you.

Tenure: Leasehold

Years remaining on lease: 998

Property LOCATION

Show Map
Powered by Apex27