Property SEARCH

Office

£16

Maidstone, Kent

AVAILABLE

Property FEATURES

  • BREEAM 'Very Good'
  • EPC 'A' energy rating
  • Planning for 17% Mezzanine Content
  • 7m Eaves Rising To 9.35m
  • 30 KN/m2 Floor Loading
  • 37 Standard Parking Spaces & 4 Disabled Parking Spaces
  • Class E(g) Planning
  • Solar PV
  • EV Charging Points & On Site Cycle Parking
  • The properties are located at Eclipse Park, Maidstone's prime mixed use Business Park strategically located on J7 of the M20 motorway approximately 1 mile north of Maidstone Town Centre. This is a highly accessible location with many local facilities immediately on site at Eclipse Park including Marks and Spencer Store, Next including Costa Coffee and Orida Hotel including LivingWell Gym as well as to the east, within walking distance is Newnham Court shopping centre. In addition is Costa Drive-Thru coming in 2025.
  • Eclipse Park is the premier edge of town office park for Maidstone with other occupiers including The Highways Agency, Azets UK Accountants, DHA Planning, Whitehead Moncktons Solicitors and Aston Lark. Maidstone East provides regular services to London Victoria and Cannon Street (approx. 1 hour) and Maidstone West, a high speed service to London St. Pancras (from 50 minutes). The M20 provides rapid communications to the channel ports and tunnel to the east and to London, the M25 and the remainder of the national motorway network to the west. Maidstone is some 37 miles south east of London with
  • Sevenoaks some 18 miles to the west and Ashford some 18 miles to the east.
  • What3Words Location:- https://w3w.co/glad.precautions.wins
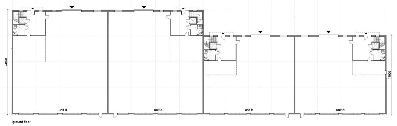
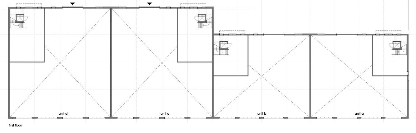
  • The latest phase of the Eclipse Park development by Gallagher will provide a terrace of 4 high quality brand new light industrial units with first floor mezzanine office complete with dedicated car parking.
  • Each unit will be provided with a roller shutter service door (or glazed curtain wall in lieu, if desired for pre-let's) onto a designated forecourt and parking. Separate pedestrian access and glazing to the north and south elevations will allow for use as office space providing excellent natural light to the internal spaces. Internally they will be finished as shell specification with disabled WC. The units will be enabled to allow occupiers to install a passenger lift if required.
  • The floor areas taken on a Gross External Area (GEA) basis are as follows:
  • Unit 7d Ground 569.50 sq m 6,130 sq ft
  • First 103.90 sq m 1,118 sq ft (planning but not installed)
  • The site benefits from 37 dedicated car parking spaces and 4 disabled parking spaces plus EV charging points and cycle parking for the use by the units.
  • The premises are immediately available by way of a new full repairing and insuring lease for a term to be agreed by negotiation and subject to upward only rent reviews to market rent
  • Planning
  • Planning is granted for Class E(g) use making the units ideal for;
  • (i) an office to carry out any operational or administrative functions,
  • (ii) the research and development of products or processes, or
  • (iii) any industrial process, being a use, which can be carried out in any residential area without detriment to the amenity of that area by reason of noise, vibration, smell, fumes, smoke, soot, ash, dust or grit.
  • No activity in connection with the use of the employment building hereby permitted shall be carried out outside the hours of 5am to 11pm.
  • Rent based on £16.50 per sq ft
  • Strictly by prior appointment through the Surveyors. Please contact Phil Hubbard e: phil.hubbard@sibleypares.co.uk or Dominic Barber e: dominic.barber@sibleypares.co.uk
  • Each side to bear its own legal and professional costs
  • To Be Assessed
  • Unless otherwise stated, all rents/prices are quoted exclusive of Value Added Tax (VAT) which will be charged at the prevailing rate. Prospective occupiers should satisfy themselves as to any VAT payable in respect of any transaction.

Property DESCRIPTION

Description

NOW READY FOR OCCUPATION
4 BRAND NEW LIGHT INDUSTRIAL UNITS ON EXCLUSIVE STRATEGIC LOCATION ON J7 OF THE M20 MOTORWAY

The latest phase of the Eclipse Park development by Gallagher will provide a terrace of 4 brand new high quality units with first floor mezzanine office complete with dedicated car parking.

Each unit will be provided with a roller shutter service door (or glazed curtain wall in lieu, if desired for pre-let's) onto a designated forecourt and parking. Separate pedestrian access and glazing to the north and south elevations will allow for use as office space providing excellent natural light to the internal spaces. Internally they will be finished as shell specification with disabled WC. The units will be enabled to allow occupiers to install a passenger lift if required.

The site benefits from 37 dedicated car parking spaces and 4 disabled parking spaces plus EV charging points and cycle parking for the use by the units.

BREEAM 'Very Good'

EPC 'A' energy rating

Planning for 17% Mezzanine Content

7m Eaves Rising To 9.35m

30 KN/m2 Floor Loading

37 Standard Parking Spaces & 4 Disabled Parking Spaces

Class E(g) Planning

Solar PV

EV Charging Points & On Site Cycle Parking

Location

The properties are located at Eclipse Park, Maidstone's prime mixed use Business Park strategically located on J7 of the M20 motorway approximately 1 mile north of Maidstone Town Centre. This is a highly accessible location with many local facilities immediately on site at Eclipse Park including Marks and Spencer Store, Next including Costa Coffee and Orida Hotel including LivingWell Gym as well as to the east, within walking distance is Newnham Court shopping centre. In addition is Costa Drive-Thru coming in 2025.

Eclipse Park is the premier edge of town office park for Maidstone with other occupiers including The Highways Agency, Azets UK Accountants, DHA Planning, Whitehead Moncktons Solicitors and Aston Lark. Maidstone East provides regular services to London Victoria and Cannon Street (approx. 1 hour) and Maidstone West, a high speed service to London St. Pancras (from 50 minutes). The M20 provides rapid communications to the channel ports and tunnel to the east and to London, the M25 and the remainder of the national motorway network to the west. Maidstone is some 37 miles south east of London with
Sevenoaks some 18 miles to the west and Ashford some 18 miles to the east.

What3Words Location:- https://w3w.co/glad.precautions.wins

Accommodation

The latest phase of the Eclipse Park development by Gallagher will provide a terrace of 4 high quality brand new light industrial units with first floor mezzanine office complete with dedicated car parking.

Each unit will be provided with a roller shutter service door (or glazed curtain wall in lieu, if desired for pre-let's) onto a designated forecourt and parking. Separate pedestrian access and glazing to the north and south elevations will allow for use as office space providing excellent natural light to the internal spaces. Internally they will be finished as shell specification with disabled WC. The units will be enabled to allow occupiers to install a passenger lift if required.

The floor areas taken on a Gross External Area (GEA) basis are as follows:

Unit 7d Ground 569.50 sq m 6,130 sq ft
First 103.90 sq m 1,118 sq ft (planning but not installed)

The site benefits from 37 dedicated car parking spaces and 4 disabled parking spaces plus EV charging points and cycle parking for the use by the units.

Terms

The premises are immediately available by way of a new full repairing and insuring lease for a term to be agreed by negotiation and subject to upward only rent reviews to market rent

Planning

Planning is granted for Class E(g) use making the units ideal for;
(i) an office to carry out any operational or administrative functions,
(ii) the research and development of products or processes, or
(iii) any industrial process, being a use, which can be carried out in any residential area without detriment to the amenity of that area by reason of noise, vibration, smell, fumes, smoke, soot, ash, dust or grit.
No activity in connection with the use of the employment building hereby permitted shall be carried out outside the hours of 5am to 11pm.

Rent/Price

Rent based on £16.50 per sq ft

Viewing

Strictly by prior appointment through the Surveyors. Please contact Phil Hubbard e: phil.hubbard@sibleypares.co.uk or Dominic Barber e: dominic.barber@sibleypares.co.uk

Rateable Value / Council Tax

To Be Assessed

VAT

Unless otherwise stated, all rents/prices are quoted exclusive of Value Added Tax (VAT) which will be charged at the prevailing rate. Prospective occupiers should satisfy themselves as to any VAT payable in respect of any transaction.

EPC

Target 'A' EPC Rating

Property LOCATION

Show Map
Powered by Apex27