Property SEARCH

4 bed Detached House

£995,000

Baliol Road, Tankerton, Whitstable

SOLD


Property FEATURES

  • Substantial Edwardian Family Home
  • Significantly Extended
  • Prime Central Tankerton Location
  • Easily Accessible to Shops, Amenities & Seafront
  • Whitstable Station 0.4 miles
  • 4 Double Bedrooms
  • 2 Bathrooms
  • South West Facing Garden
  • Garage & Off Street Parking
  • No Onward Chain

Property DESCRIPTION

Walton House is an attractive and substantial Edwardian family home enjoying a much sought after and highly convenient location. Situated equally between the shops and cafes of Whitstable's Harbour Street and Tankerton Slopes, the seafront and the train station are only 5 minutes walk away. The area has excellent local schooling options.

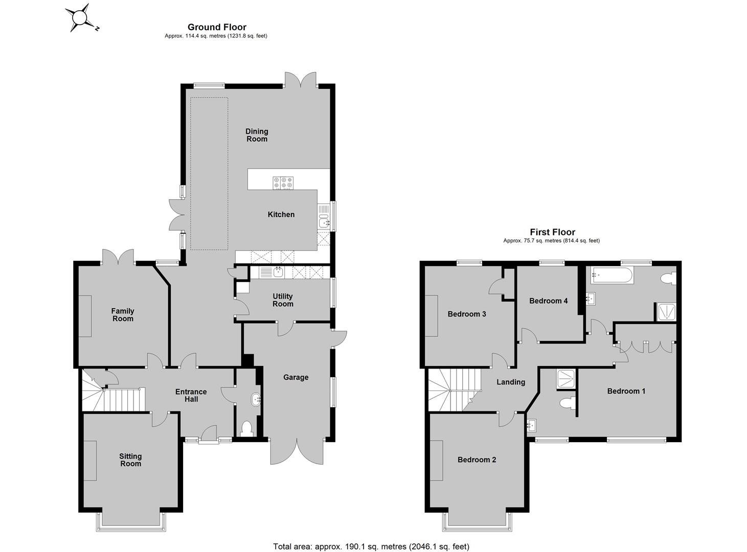
This charming, well presented, period home provides 2046 sq ft (190 sq m) of generously proportioned accommodation. The spacious ground floor is arranged to provide an entrance hall, sitting room, family room with patio access, an exceptional bright and airy kitchen/dining room, utility, cloakroom and integrated garage with development potential (subject to obtaining all necessary consents and approvals). To the first floor there are four bedrooms and two bathrooms, including an en-suite shower room to the principal bedroom.

The established South West facing garden is thoughtfully planted with shrubs and mature fruit trees, and features a protected, sunny paved terrace which is ideal for outside entertaining. A shingled driveway to the front of the house provides an area of off-street parking with access to the integral garage and a side gate entrance to the garden. Walton House has no onward chain.

Property LOCATION

Show Map
Powered by Apex27